Villa bifamiliare, nuova, 370 m², Centro, Borghetto di Vara
Vendita
Vendita Villa

Villa bifamiliare, nuova, 370 m², Centro, Borghetto di Vara

Borghetto di Vara, La Spezia

225.000 €
Ottimo Affare: 31% sotto la media
370
mq
5
Locali
4
Camere

Recensisci questo Immobile

Devi essere registrato per lasciare una recensione.

Accedi

Nessuna recensione ancora. Sii il primo!

Descrizione

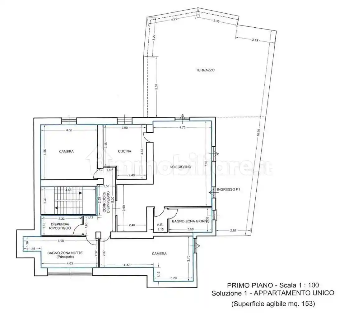
PRI1384 - BORGHETTO DI VARA - LA SPEZIA: Splendida villa al grezzo disposta su 3 livelli, a 2km dal casello autostradale di Borghetto di Vara, a mezz'ora da Forte Dei Marmi, Portofino e a 20 minuti dalle 5 Terre. Possibilità di realizzare 2 appartamenti di 153 e 90 mq al primo e secondo piano. Piano terra 3 negozi da 10mq, 50mq e 70mq ripostiglio 5mq. Piccolo giardino 2 ampi terrazzi. Ideale anche come Bed and Breakfast (Proposta come da planimetrie allegate). Chiediamo cortesemente, qualora interessati all'immobile in oggetto, di lasciare il recapito telefonico oltre che quello della mail, per poter essere ricontattati, grazie.

Caratteristiche

Piano Piano terra
Ascensore No
Stato Nuovo / In costruzione
Riscaldamento Assente
Garage 1 in box privato/box in garage

Posizione

Storico

Pubblicato 28 Dec 2025
Aggiornato 15 Feb 2026
Sul mercato 56 giorni
ID Annuncio 117271827

Recensioni

Vedi tutte
A

Amedeo Cherchi

4.0

Ricordo quando sono arrivato a Reggio Emilia e ho trovato subito un'agenzia che mi ha seguito con cortesia e professionalità. Durante tutta la trattativa, hanno gestito bene lo stress, aiutandomi a tr...

C

Cesare Nardone

5.0

Ho trovato il bilocale perfetto grazie a un’agenzia immobiliare molto professionale e umana. Sono stato molto colpito dalla loro pazienza e dalla puntualità negli appuntamenti, che hanno reso tutto il...