Vendita Palazzo - Edificio

Palazzo - Edificio

corso garibaldi, Fiorenzuola d'Arda, Piacenza

Prezzo su richiesta
550
mq
5+
Locali

Recensisci questo Immobile

Devi essere registrato per lasciare una recensione.

Accedi

Nessuna recensione ancora. Sii il primo!

Descrizione

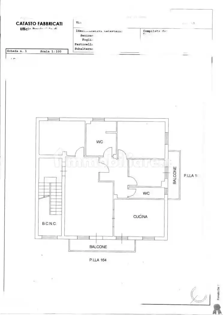
Rif: FI596 - CODICE ANNUNCIO FI596 - Centro storico con affaccio su Corso Garibaldi, FABBRICATO DI GRANDI DIMENSIONI, composto da: P.T. negozio a 2 vetrine e servizio attualmente a reddito, appartamento di c.a. 60 mq con affaccio interno, cortile/giardino interno e garage di 20 mq c.a. con accesso dalla via dietro; P.1° appartamento signorile composto da 4 vani oltre doppi servizi, 2 balconi e terrazza; P.2° appartamento di uguali dimensioni; P.3° ad uso solaio e cantine al P. seminterrato. UNICO!
ARDA CASE SRL, agenzia immobiliare associata alla FIAIP (Federazione Italiana Agenti Immobiliari Professionali) garantisce professionalità, serietà e osservanza del codice Deontologico, è sul mercato immobiliare da oltre 30 anni, si occupa di ogni pratica necessaria alla compravendita residenziale o commerciale e svolge con la massima serietà ogni pratica relativa alla locazione sia dal punto di vista commerciale come uffici, negozi, capannoni che la punto di vista residenziale. L'esperienza trascorsa in campo edilizio permette inoltre di offrire consulenze relative alle ristrutturazioni e alle problematiche delle abitazioni, fornendo elenchi di professionisti al servizio della casa. ARDA CASE SRL si occupa inoltre di assistenza c/o studi notarili, promozione pubblicitaria immobili, registrazione atti c/o ufficio del registro, servizi catastali e disbrigo pratiche c/o uffici tecnici comunali. Garantiamo la consulenza finanziaria, grazie alle banche con cui collaboriamo quotidianamente, proponiamo mutui convenienti ed adatti ad ogni richiesta del cliente. Per ulteriori informazioni o per valutare altre nostre interessanti proposte saremmo lieti se passaste a vistare i nostri uffici in Fiorenzuola d'Arda, Piazza Caduti n. civico 25, zona adiacente alla stazione ed a Corso Garibaldi. Ci potete contattare per un incontro, siamo disponibili anche al sabato mattina solo previo appuntamento, tramite il numero 0523 981321

Caratteristiche

Servizi e accessori

Balcone

Posizione

Referente

Arda Case srl

Storico

Pubblicato 12 Jan 2026
Aggiornato 24 Feb 2026
Sul mercato 44 giorni
ID Annuncio 117340699

Recensioni

Vedi tutte
S

Silvia Ferri

5.0

Cercavo un terreno per costruire e ho trovato quella che faceva al caso mio con l’agenzia. Mi sono trovata bene perché hanno spiegato tutto con chiarezza e mi hanno aiutata a fare le scelte giuste, se...

V

Viviana Carbone

5.0

Ho trovato un'agenzia immobiliare davvero brava a Fiorenzuola d'Arda. Mi hanno aiutata a trovare il magazzino perfetto per la mia azienda in tempi rapidi e con tanta pazienza, rispondendo a tutte le m...

V

Vittorio Ventura

4.7

Se state cercando un'agenzia immobiliare affidabile, vi consiglio di rivolgervi a questa perché sono stati fantastici con me. Ho trovato la casa dei miei sogni dopo anni di affitto, grazie alla loro d...