Indietro
Vendita Casa indipendente Luxury

Casa indipendente

Via Tengattini, Paratico, Brescia

Prezzo su richiesta
1800
mq
5+
Locali
3
Camere
3+
Bagni

Recensisci questo Immobile

Devi essere registrato per lasciare una recensione.

Accedi

Nessuna recensione ancora. Sii il primo!

Descrizione

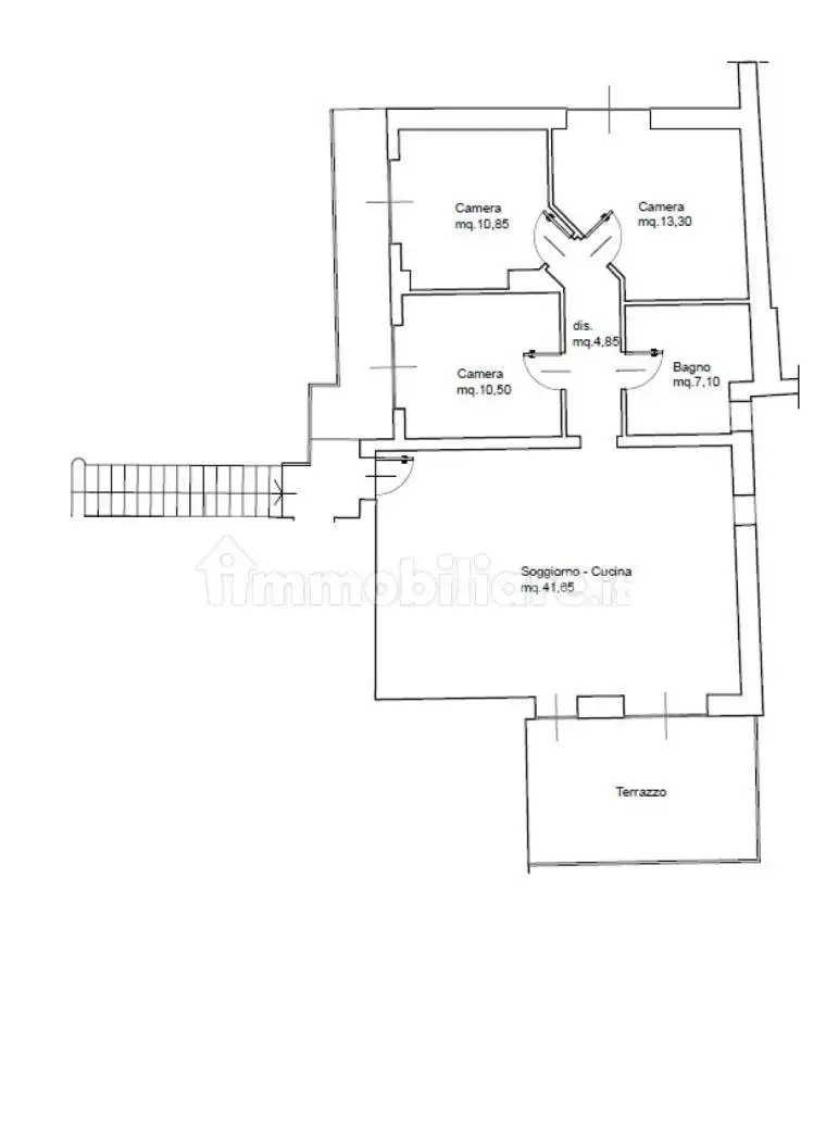
Proponiamo in vendita immobile residenziale completamente da demolire per far spazio a nuova abitazione; disponibili circa 4.000 mc di cubatura.
Ottima posizione con vista panoramica del lago.
Per ulteriori informazioni e sopraluogo contattare: Alberto Lancini cell: Viale Mazzini n. 5/1 25032 Chiari - BS Tel: +39 030 700.28. 00 e-mail: web: Si precisa che le informazioni e la documentazione pubblicate sono da ritenersi indicative e non costituiscono elemento contrattuale.

Caratteristiche

Piano T
Ascensore No
Stato Da ristrutturare
Riscaldamento Autonomo

Servizi e accessori

Caminetto Esposizione esterna Impianto tv singolo Infissi esterni in doppio vetro / legno Mansarda

Posizione

Referente

Edilnordagency

Storico

Pubblicato 12 Jan 2026
Aggiornato 18 Feb 2026
Sul mercato 42 giorni
ID Annuncio 117446309

Recensioni

Vedi tutte
V

Valentina Morrone

4.7

Stavo cercando una casa più vicina ai miei genitori anziani e grazie alla loro professionalità ho trovato subito quello che cercavo. Mi sono sentita seguita e aiutata in ogni passo, con grande rapidit...