Vendita Appartamento

Appartamento via degli Stadi 113, Stadio - Città 2000, Cosenza

Via degli Stadi, 113, Cosenza, Cosenza

170.000 €
131
mq
5
Locali
3
Camere
2
Bagni

Recensisci questo Immobile

Devi essere registrato per lasciare una recensione.

Accedi

Nessuna recensione ancora. Sii il primo!

Descrizione

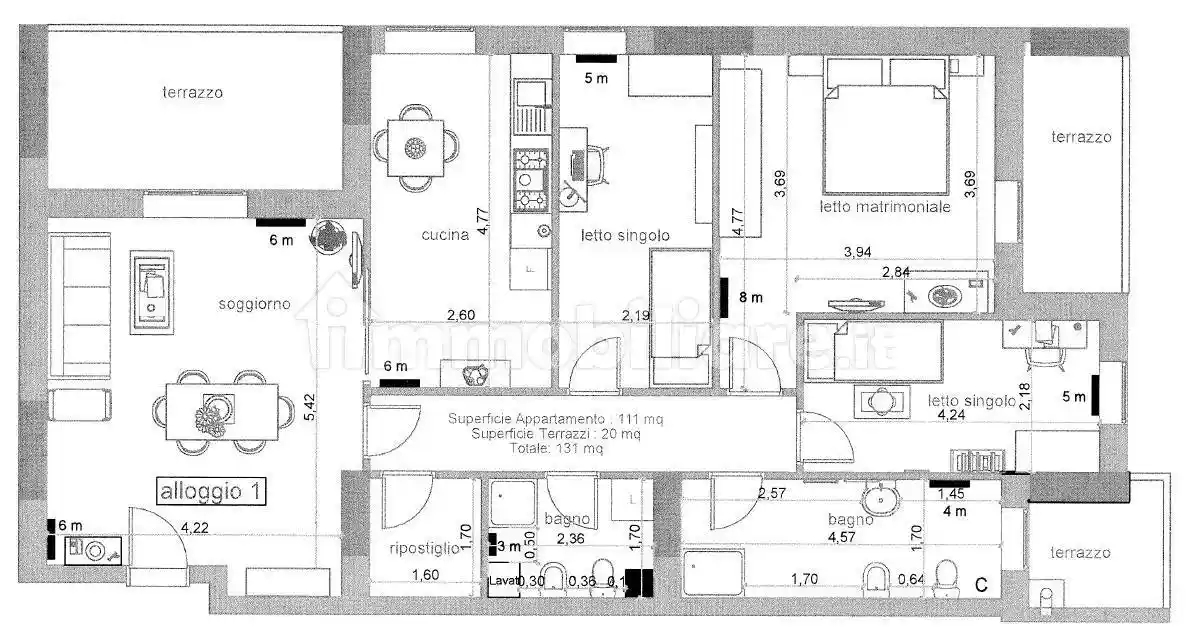
GAUSERVICE IMMOBILIARE propone in vendita a Cosenza, Via degli Stadi, appartamento di nuova costruzione di 131 mq.
L'appartamento è composto da ingresso con soggiorno e terrazzo coperto, cucina abitabile, ripostiglio, disimpegno con tre camere da letto, due bagni e due balconi.
La tipologia descritta è disponibile al piano 4°, 5° e 16°.
PREZZO 170.000 + IVA

Caratteristiche

Piano 4°, con ascensore
Ascensore Si

Servizi e accessori

Porta blindata Accesso per disabili Terrazzo

Posizione

Zona: Stadio - Città 2000 (Panebianco, Stadio, Città 2000, Acquedotto)

Agenzia Immobiliare

Storico

Pubblicato 11 Jan 2026
Aggiornato 26 Feb 2026
Sul mercato 46 giorni
ID Annuncio 117949561