Vendita Appartamento

Appartamento

Via Piave, 63, San Martino Buon Albergo, Verona

385.000 €
150
mq
4
Locali
3
Camere
2
Bagni

Recensisci questo Immobile

Devi essere registrato per lasciare una recensione.

Accedi

Nessuna recensione ancora. Sii il primo!

Descrizione

L'IMMOBILIARE ZDF propone in vendita il nuovo intervento nel cuore del Borgo della Vittoria a San Martino Buon Albergo.
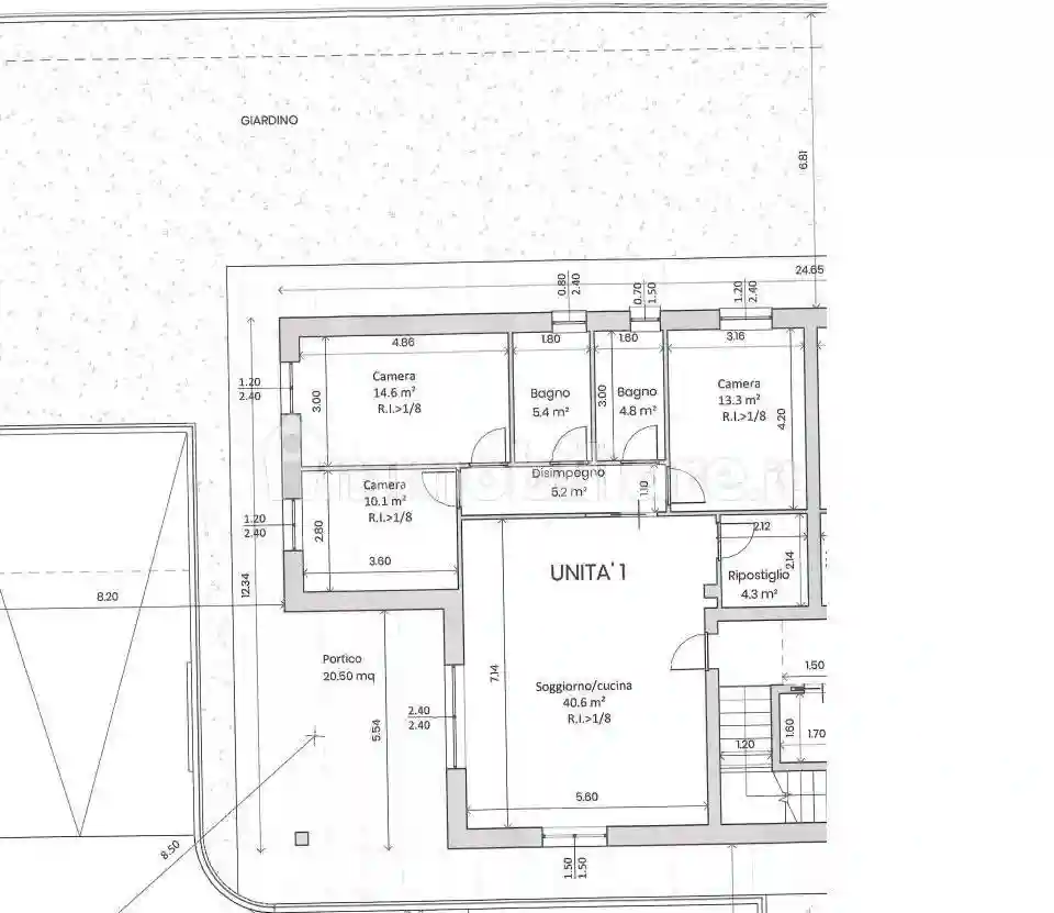
Proponiamo all'interno del residence di sole sette unità di ultima generazione appartamento con GIARDINO di ingresso, soggiorno di 41 mq , tre camere da letto, due bagni finestrati, garage doppio e cantina compreso nel prezzo.
LA soluzione abitativa garantisce le migliori performance antisismiche costruite in cemento armato con capotto di 15 cm, con una particolare attenzione al comfort acustico e la certificazione energetica in classe A4 ++, combinando pompa di calore inverter predisposizione alla ventilazione meccanica controllata, le unità verranno consegnate comprese di infissi tripla vetrocamera antisfondamento dotati di zanzariere, tapparelle elettriche con domotica, pompa di calore ad alta efficienza energetica, riscaldamento a pavimento, split per il raffrescamento, fotovoltaico dedicato ad ogni appartamento predisposto per le batterie di accumulo e fotovoltaico per le parti comuni. Infine grazie ad un' accurato studio in fase progettuale, si sono potuti esaltare gli spazi interni ed esterni armonizzando la grande luminosità delle vetrate ,scelta accurata dei materiali e finiture di pregio. Ogni soluzione è completamente personalizzabile dal cliente grazie anche all'ausilio dell'architetto dedicato.
POSSIBILITA' DI ACCEDERE ALLA DETRAZIONE FISCALE PREVISTA DAL SISMA BONUS FINO A 80.000 EURO IN 5 ANNI.
Chi siamo
L’ agenzia immobiliare ZDF vanta un’ esperienza ultra-ventennale nel campo immobiliare.

E’ affiancata da tecnici e professionisti del settore e Vi offre un servizio completo, dalla valutazione, all’atto di vendita d'affitto del vostro immobile.

L'agenzia immobiliare ZDF di San Martino Buon Albergo via Firenze n 10 si occupa di affitto e vendita di appartamenti, case, ville a schiera o indipendenti, garage e box, attici e mansarde, rustici, terreni, uffici, negozi, capannoni, attività commerciali, in particolare nelle zone di San Martino B.A., Lavagno, Verona e comuni limitrofi.
Servizi
ACQUISTO:
Analisi e monitoraggio del mercato immobiliare.
Ricerca personalizzata per tipologia di immobile.
Assistenza tecnica nella valutazione.
Conduzione della negoziazione.
Assistenza tecnica nella fase contrattuale.
Contatto iniziale con il cliente via e-mail e/o telefono per discutere le richieste specifiche.
Database con vasto portafoglio immobili.
Consulenza legale e fiscale.
Consulenza tecnica con perizia.
Visure Catastali ed Ipotecarie.
Redazione e registrazione del contratto preliminare di compravendita.
Assistenza al rogito notarile.
Assistenza per la ristrutturazione e l’arredamento.
VENDITA:
Database per proposta di vendita di immobili tramite registrazione sul nostro sito.
Valutazione dell’immobile.
Esame preliminare della possibilità di vendita.
Ricerca clienti sul mercato internazionale.
Assistenza tecnica nella fase contrattuale.
Inserimento dell’annuncio di vendita sul nostro sito.
Promozione sul mercato internazionale dell'immobile in vendita attraverso il nostro sito.
Redazione e registrazione del preliminare di compravendita.
Assistenza al rogito notarile.
AFFITTO:
Database per proposte di affitto di immobili, per giorno, per settimana, per mese e per anno, tramite registrazione sul nostro sito.
Esame preliminare della possibilità di affitto
Assistenza tecnica nella fase contrattuale.
Inserimento dell’annuncio di affitto sul nostro sito.
Promozione dell’affitto sul mercato internazionale attraverso il nostro sito.

Caratteristiche

Piano T
Ascensore Si
Stato Nuovo / In costruzione
Riscaldamento Autonomo, a pavimento, alimentato a pompa di calore

Servizi e accessori

Armadio a muro Cancello elettrico Esposizione doppia Fibra ottica Impianto di allarme Impianto tv con parabola satellitare Infissi esterni in triplo vetro / PVC Porta blindata VideoCitofono

Posizione

Referente

Immobiliare Zdf

Storico

Pubblicato 15 Jan 2026
Aggiornato 24 Feb 2026
Sul mercato 40 giorni
ID Annuncio 118133613

Recensioni

Vedi tutte
D

Domenico Musumeci

5.0

Appena ho varcato la porta, sono stato colpito dalla professionalità e dalla conoscenza approfondita delle normative che traspaiono in ogni dettaglio. L'agenzia è seria e affidabile, e il team mi ha s...

A

Andrea Valentini

4.7

Appena ho visto la tranquillità di Belfiore, ho capito che era il posto giusto per vivere dopo la pensione. Sono stato molto soddisfatto dell’attenzione alle mie esigenze e del supporto continuo che h...

D

Donatella Cortese

4.3

Dopo aver avuto esperienze poco positive con altre agenzie, questa volta ho trovato un approccio molto diverso: più attento e professionale. Sono stata seguita con pazienza e attenzione, e ho apprezza...