Indietro
Vendita Casa indipendente

Casa indipendente

VIA GUBERTE, 18, Marcaria, Mantova

Prezzo
Ottimo Affare: 87% sotto la media
800
mq
5+
Locali
8
Camere
2
Bagni

Recensisci questo Immobile

Devi essere registrato per lasciare una recensione.

Accedi

Nessuna recensione ancora. Sii il primo!

Descrizione

San Quirino Immobiliare propone in vendita un’imperdibile proprietà!! terracielo da ristrutturare nel centro di Campitello, ideale per chi cerca un investimento dalle grandi potenzialità!

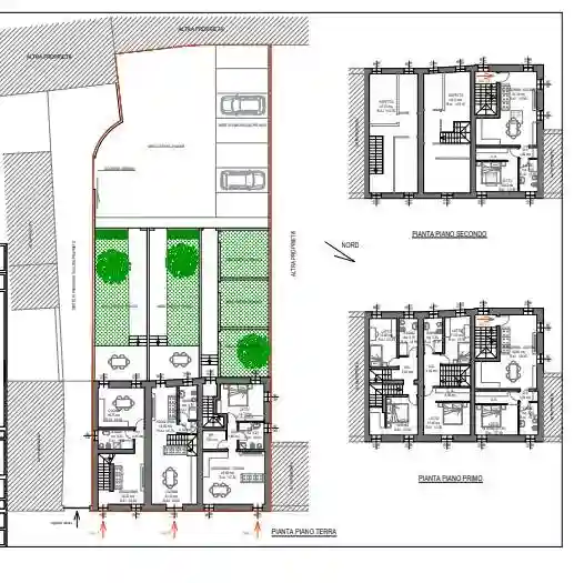
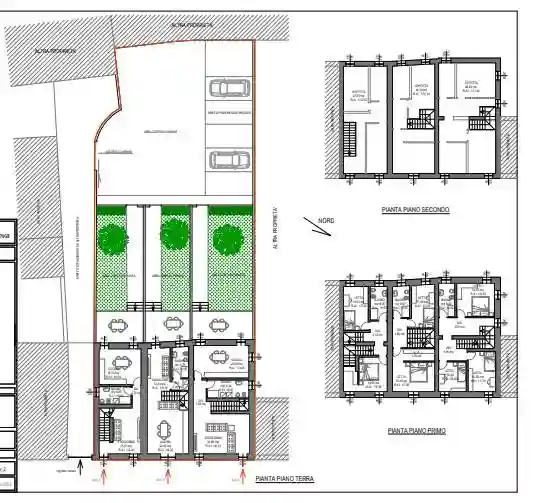
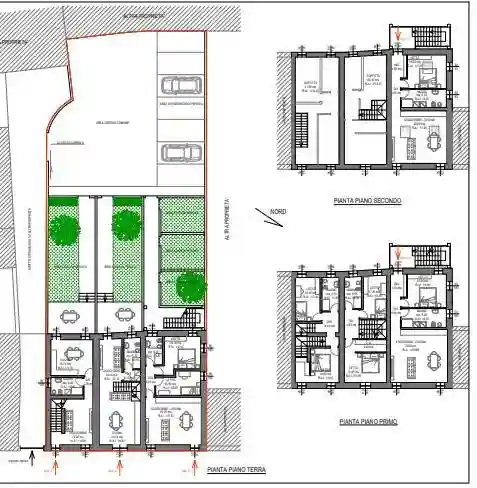
L’immobile si sviluppa su un’area di circa 750 mq, con 300 mq di area cortiliva già recintata e accessibile con l’auto, su cui sorge un rustico (ex stalla) dalle generose metrature, perfetto per essere trasformato in uno spazio funzionale e suggestivo.
La struttura principale, articolata su tre livelli (piano terra, primo piano e sottotetto abitabile), è composta da oltre 10 locali di ampissima metratura. L’ingresso, con i suoi 40 mq, anticipa lo stile imponente e versatile dell’intero edificio.

Le opportunità di valorizzazione sono infinite:
Creazione di un elegante B&B o struttura ricettiva
Appartamenti di pregio o soluzioni residenziali esclusive
Uffici o studi professionali in un contesto dal fascino unico
Struttura per anziani o residenza sanitaria di alto livello
Residenza privata di prestigio, con ampi spazi sia interni che esterni
La posizione centrale è un ulteriore punto di forza, con ampio parcheggio pubblico nelle vicinanze.
Il prezzo è trattabile, e il proprietario – persona disponibile e ragionevole – è aperto a valutare proposte concrete.

N.B. L'IMMOBILE VIENE VENDUTO COME UNITA' COLLABENTE SE NELLO STATO IN CUI SI TROVA, ALTRIMENTI ABBIAMO POSSIBILITA' DI REALIZZARE SOLUZIONI ABITATIVE NUOVE (PREVIO ACCORDO SUI COSTI).
Abbiamo in ufficio i progetti e il computometrico estimativo.

Un’occasione da non perdere per dare vita al progetto che hai sempre sognato!
Contattaci subito per maggiori informazioni e per organizzare una visita.

CONSULENTE: PIETRI ALESSANDRO
3398521204 0375930000
alessandro.pietri@sanquirinoimmobiliare.it
Viadana (MN), piazza Solferino 13

Caratteristiche

Ascensore No
Stato Da ristrutturare

Servizi e accessori

Esposizione doppia Impianto tv singolo Infissi esterni in vetro / PVC Mansarda Taverna

Posizione

Referente

San Quirino Immobiliare

Storico

Pubblicato 13 Jan 2026
Disattivato 13 Mar 2026
Sul mercato 133 giorni
ID Annuncio 118203241

Recensioni

Vedi tutte
R

Ruggero Loi

5.0

Ho trovato la casa perfetta grazie a un team molto disponibile e paziente, che ha sempre seguito ogni mio passo con grande flessibilità negli orari. Sono stato molto felice dell’assistenza ricevuta, c...

T

Tullio Mazza

4.7

Dopo aver avuto brutte esperienze in passato con agenzie poco affidabili, finalmente ho trovato un team che mantiene le promesse: sempre puntuali e molto disponibili. Mi sono sentito seguito passo pas...

A

Antonio Masi

4.0

Ho scelto questa agenzia perché mi hanno colpito subito per la loro disponibilità e flessibilità negli orari, il che mi ha aiutato a gestire lo stress della ricerca. Sono stato davvero contento di com...