Vendita Appartamento

Appartamento

Via Montelungo, Monza, Monza e Brianza

426.000 €
142
mq
4
Locali
3
Camere
2
Bagni

Recensisci questo Immobile

Devi essere registrato per lasciare una recensione.

Accedi

Nessuna recensione ancora. Sii il primo!

Descrizione

Monza via Montelungo
TUTTE LE UNITA' DISPONIBILI AL SEGUENTE LINK:
https://www.immobiliare.it/annunci/104678785/

Proponiamo nuova residenza in fase di costruzione.
Il progetto prevede la realizzazione di una palazzina ad uso residenziale di tre piani fuori terra e uno interrato, edificata in classe energetica A3; parte del lotto, facente parte del progetto, verrà riqualificato e destinato ad aera verde comunale con piante di alto fusto, panchine, recinzione e impianto di video sorveglianza.
L'intervento prevede l'utilizzo di materiali e tecnologie di ultima generazione conformi a quanto previsto nella relazione energetica ed acustica:
Impianto fotovoltaico, riscaldamento a pavimento tramite pannelli radianti, impianto elettrico a gestitone tradizionale con comandi locali presenti negli ambienti oppure tramite applicazione Home+Control già configurata per il cliente, infissi in legno laccato con vetrocamera a basso emissivo e doppio vetro, tapparelle elettriche in alluminio, predisposizione impianto di raffrescamento mediante split e impianto di allarme volumetrico/perimetrale, ventilazione meccanica (VMC) capace di rinnovare costantemente l'aria indoor senza perdita di temperatura deumidificando gli ambienti per migliorare il benessere abitativo come la qualità dell'aria.
Disponibili unità di varie tipologie e metrature dal piano terra al piano terzo, con giardini ad uso esclusivo o ampi terrazzi e balconi.
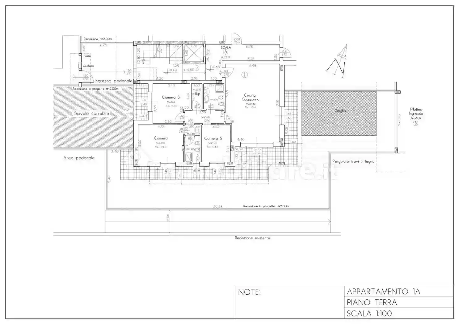
Nel dettaglio proponiamo esclusivo 4 locali composto da: soggiorno con cucina a vista, tre camere da letto, doppi servizi, ripostiglio, ampio giardino perimetrale con patio coperto e locale cantina al piano interrato.
Ampia scelta capitolato interno e possibilità di adattare gli ambienti alle proprie esigenze, ove possibile, modificando ampiezza e disposizione dei locali con la supervisione dell'architetto/progettista.
Possibilità box singoli e doppi.
Possibilità accollo mutuo fondiario
Pagamenti personalizzati
Detrazioni fiscali 50% su costo di costruzione box

Le immagini riportate sono solo a scopo illustrativo, sono puramente indicative e non costituiscono elemento contrattuale.

Caratteristiche

Piano T
Ascensore Si
Stato Nuovo / In costruzione
Riscaldamento Centralizzato, a pavimento, alimentato a solare

Servizi e accessori

Cancello elettrico Esposizione esterna Fibra ottica Impianto di allarme Impianto tv centralizzato Infissi esterni in triplo vetro / legno Porta blindata VideoCitofono

Posizione

Zona: Triante (Triante, San Giuseppe)

Referente

Divina Servizi Immobiliari Monza

Storico

Pubblicato 13 Jan 2026
Aggiornato 18 Feb 2026
Sul mercato 43 giorni
ID Annuncio 118463937

Recensioni

Vedi tutte
I

Italo Salvi

5.0

Durante tutto il processo di acquisto del terreno mi sono sentito davvero rassicurato, grazie alla grande conoscenza delle normative dimostrata dall’agenzia. Sono stato seguito con professionalità che...

G

Giuseppe Cavalli

4.7

Stavo cercando un aiuto affidabile per vendere il mio appartamento di famiglia a Monza e ho trovato questa agenzia che mi ha seguito passo dopo passo. Mi è piaciuto molto come sono stato supportato an...

I

Ivan Brunetti

4.7

Ho trovato un appartamento con vista mare che cercavo, tutto grazie a un’agenzia davvero efficace. Mi hanno seguito passo dopo passo, gestendo con precisione tutta la burocrazia e assicurandosi che la...