Vendita Appartamento

Appartamento

Via Pio X, 126, Schio, Vicenza

350.000 €
100
mq
4
Locali
3
Camere
2
Bagni

Recensisci questo Immobile

Devi essere registrato per lasciare una recensione.

Accedi

Nessuna recensione ancora. Sii il primo!

Descrizione

SCHIO – MAGRÈ
Proponiamo nuova iniziativa immobiliare di recente realizzazione composta da 3 ampi quadrilocali in classe energetica A. L’annuncio è dedicato all’unità posta all’ultimo piano, soluzione di pregio inserita in una palazzina servita da ascensore, caratterizzata da design contemporaneo e finiture di qualità.
L’intervento ha previsto la demolizione e ricostruzione di un fabbricato esistente, con la realizzazione di tre unità abitative progettate con particolare attenzione al risparmio energetico, alla riduzione dei costi di gestione e al comfort abitativo. Gli immobili sono attualmente al coperto e in fase di completamento delle finiture. Ogni appartamento è dotato di riscaldamento radiante a pavimento e impianto fotovoltaico non inferiore a 2 kW, a servizio delle esigenze elettriche e della pompa di calore.
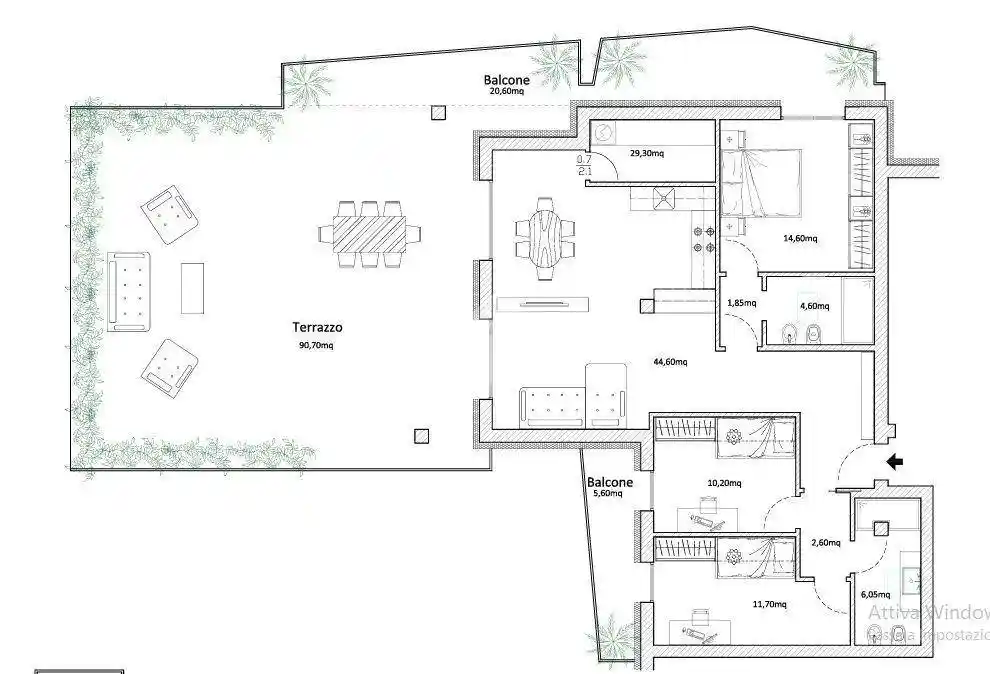
L’abitazione si sviluppa con una luminosa zona giorno open space di circa 40 mq con accesso al terrazzo dotato di caminetto, disimpegno, bagni finestrati e zona notte composta da due camere matrimoniali di 15 mq e una camera doppia di 11 mq. Completano la proprietà box auto privato per due vetture e posto auto scoperto. Le altre due unità al piano primo e secondo, con caratteristiche analoghe, sono proposte a un prezzo pari a € 295.000. Possibilità di personalizzazione di finiture e impianti, con predisposizione per antifurto, climatizzazione canalizzata e domotica.

Caratteristiche

Piano 4
Ascensore Si
Stato Nuovo / In costruzione
Riscaldamento Autonomo, a pavimento

Servizi e accessori

Impianto di allarme VideoCitofono

Posizione

Referente

Affiliato Tecnocasa: STUDIO MAGRE' SRL

Storico

Pubblicato 15 Jan 2026
Aggiornato 24 Feb 2026
Sul mercato 40 giorni
ID Annuncio 118473085

Recensioni

Vedi tutte
F

Flavio Calandrini

4.7

Ho scelto questa agenzia perché mi ha colpito la loro attenzione ai dettagli e la professionalità dimostrata fin dal primo momento. Sono stato molto felice di aver trovato il bilocale perfetto per le...