Indietro
Vendita Attico - Mansarda

Attico - Mansarda

Via Bianca, Rimini, Rimini

430.000 €
121
mq
4
Locali
3
Camere
2
Bagni

Recensisci questo Immobile

Devi essere registrato per lasciare una recensione.

Accedi

Nessuna recensione ancora. Sii il primo!

Descrizione

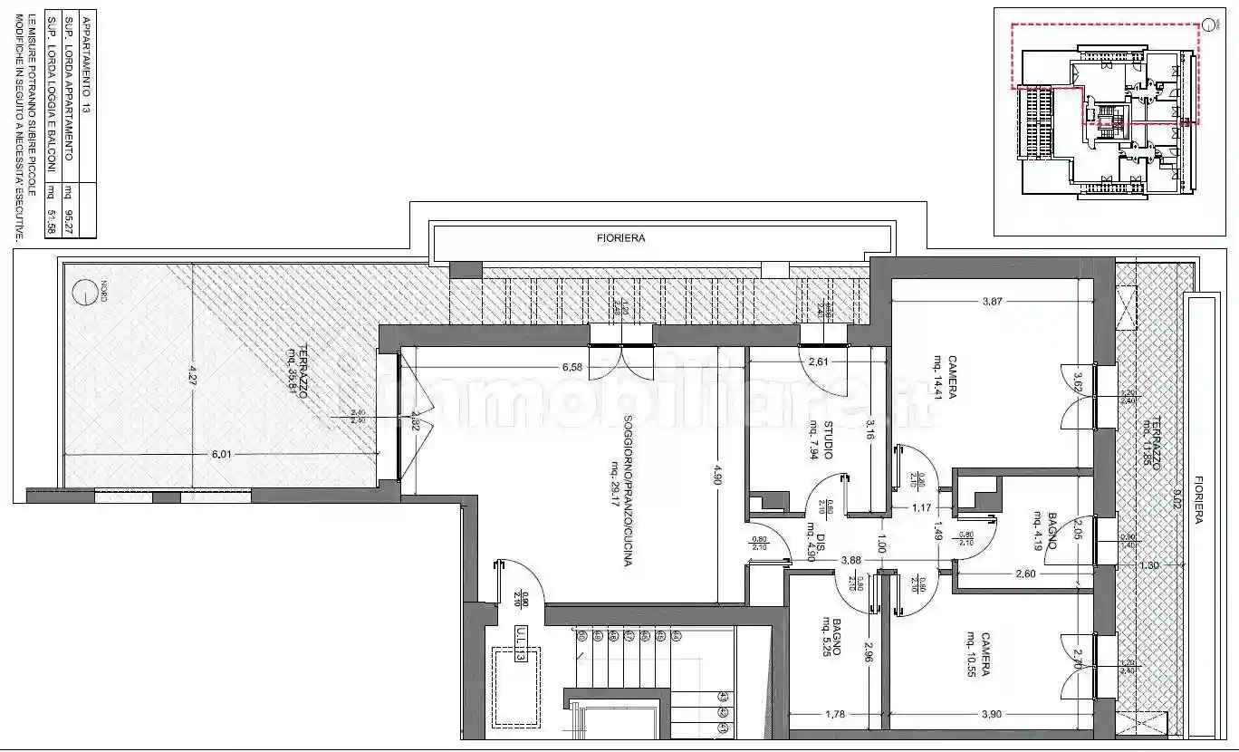
ATTICO CON TERRAZZO "Residenza Lungo Fiume" Rimini, traversa di via Marecchiese. Si propone in vendita, al piano terzo ed ultimo, un attico, tipologia quadrilocale, con splendidi terrazzi vista e affaccio sul parco. L'appartamento si compone di ampia zona living con angolo cottura, disimpegno notte, camera matrimoniale, camera singola, studio/cameretta, doppi servizi. . Progettato in Classe energetica A4 per garantire il massimo confort abitativo, sarà realizzato con materiali di elevata qualità, sia nelle finiture che degli impianti installati. L'appartamento, attualmente in fase di realizzazione con consegna prevista a primavera 2026, è inserito in una delle ultime due palazzine, facenti parte dell’intervento denominato “Residenza LungoFiume”, a completamento dello stesso, inserito in una zona comodamente collegata con le principali arterie cittadine e servita dalla comoda Pista Ciclabile, che consente di raggiungere il Centro Storico in 5 minuti ed il Mare in 10 minuti, inserite nello splendido parco già in fase di realizzazione. Al piano interrato, con costo a parte, possibilità di abbinare un comodo garage, raggiungibile con scale ed ascensore.

Caratteristiche

Piano 4
Ascensore Si
Stato Nuovo / In costruzione
Riscaldamento Autonomo, a pavimento, alimentato a pompa di calore

Servizi e accessori

Armadio a muro Cancello elettrico Esposizione esterna Fibra ottica Impianto di allarme Impianto tv con parabola satellitare Infissi esterni in doppio vetro / PVC Porta blindata VideoCitofono

Posizione

Zona: Via Dario Campana (Centro)

Referente

Paiano Immobiliare Srl

Storico

Pubblicato 12 Jan 2026
Aggiornato 24 Feb 2026
Sul mercato 45 giorni
ID Annuncio 118502985

Recensioni

Vedi tutte
R

Renato Pecoraro

4.7

Ho trovato l'agenzia molto professionale e affidabile. Mi ha seguito con chiarezza nelle spiegazioni e ha fornito tutta la documentazione in modo preciso. Grazie a loro ho trovato l'affitto che cercav...

C

Corrado Gentile

4.7

Dopo tante esperienze deludenti, questa agenzia mi ha davvero sorpreso: sono stato trattato con trasparenza e rapidità, cosa rara da trovare. Mi hanno seguito con attenzione e professionalità, aiutand...