Vendita Appartamento

Trilocale nuovo, primo piano, Centro, Giulianova

Giulianova, Teramo

Prezzo
88
mq
3
Locali
2
Camere
2
Bagni

Recensisci questo Immobile

Devi essere registrato per lasciare una recensione.

Accedi

Nessuna recensione ancora. Sii il primo!

Descrizione

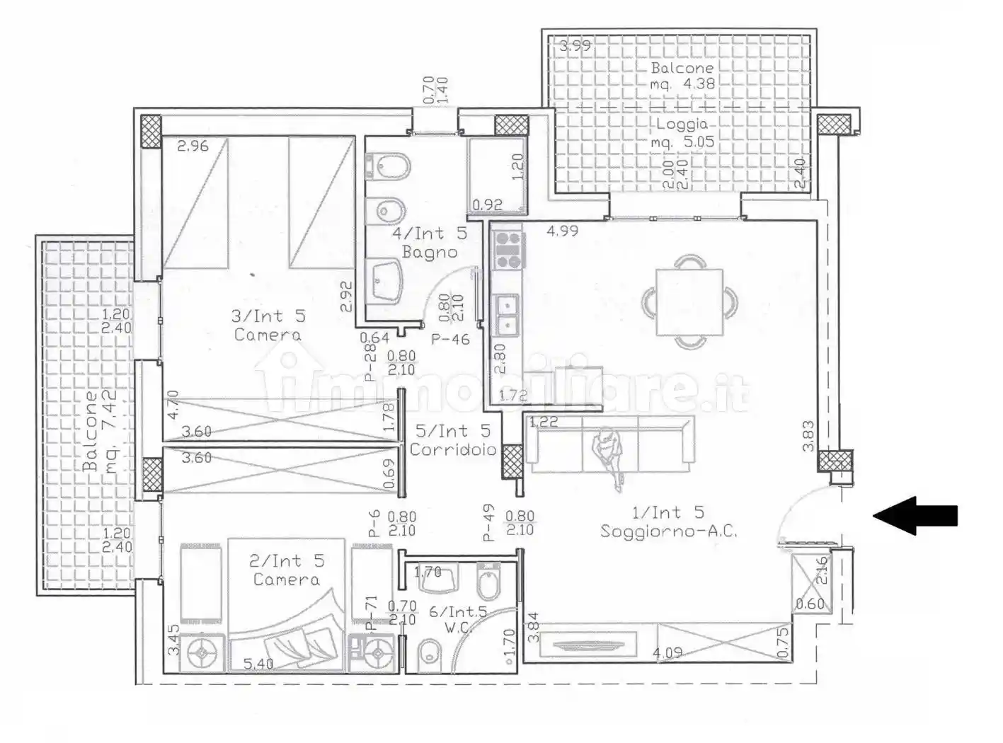
Proponiamo appartamento in corso di realizzazione composto da ampio soggiorno con angolo cottura con terrazza loggiata a servizio, 2 camere matrimoniali e 2 bagni. Le finiture sono di alta qualità, con riscaldamento a pavimento e isolamento termico per garantire il massimo comfort, mentre l'impianto fotovoltaico condominiale aggiunge ulteriori vantaggi ecologici ed economici. Ampie possibilità di personalizzazione. Disponibili box auto da acquistare a parte. Consegna estate 2026.

Caratteristiche

Piano 1°, con ascensore
Ascensore Si

Servizi e accessori

Esposizione esterna Accesso per disabili Balcone

Posizione

Agenzia Immobiliare

Storico

Pubblicato 11 Jan 2026
Disattivato 01 May 2026
Sul mercato 131 giorni
ID Annuncio 118612153