Appartamento
Vendita
Vendita Appartamento

Appartamento

Alghero, Sassari

235.000 €
60
mq
3
Locali
2
Camere
1
Bagni

Recensisci questo Immobile

Devi essere registrato per lasciare una recensione.

Accedi

Nessuna recensione ancora. Sii il primo!

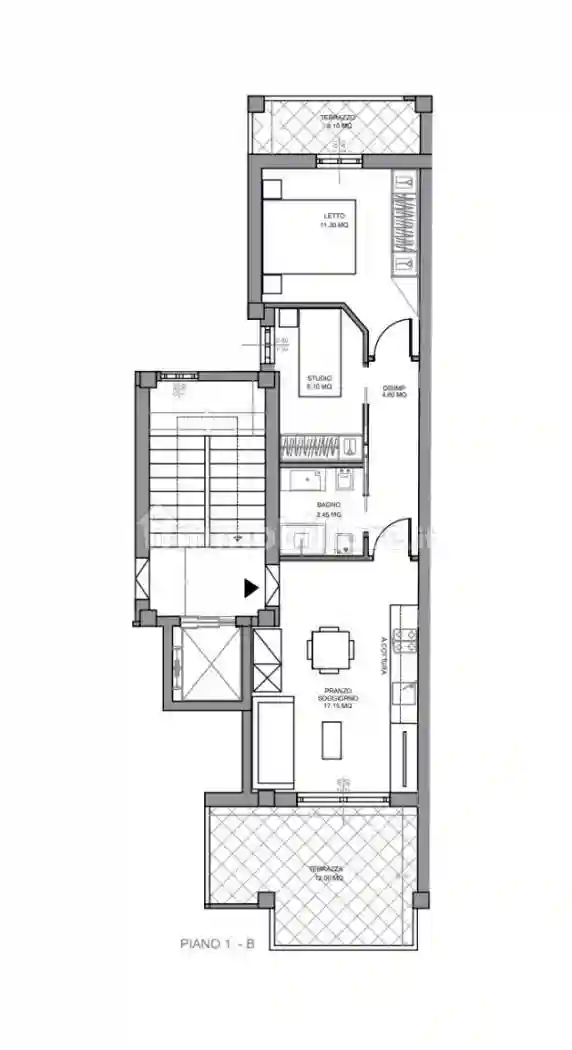
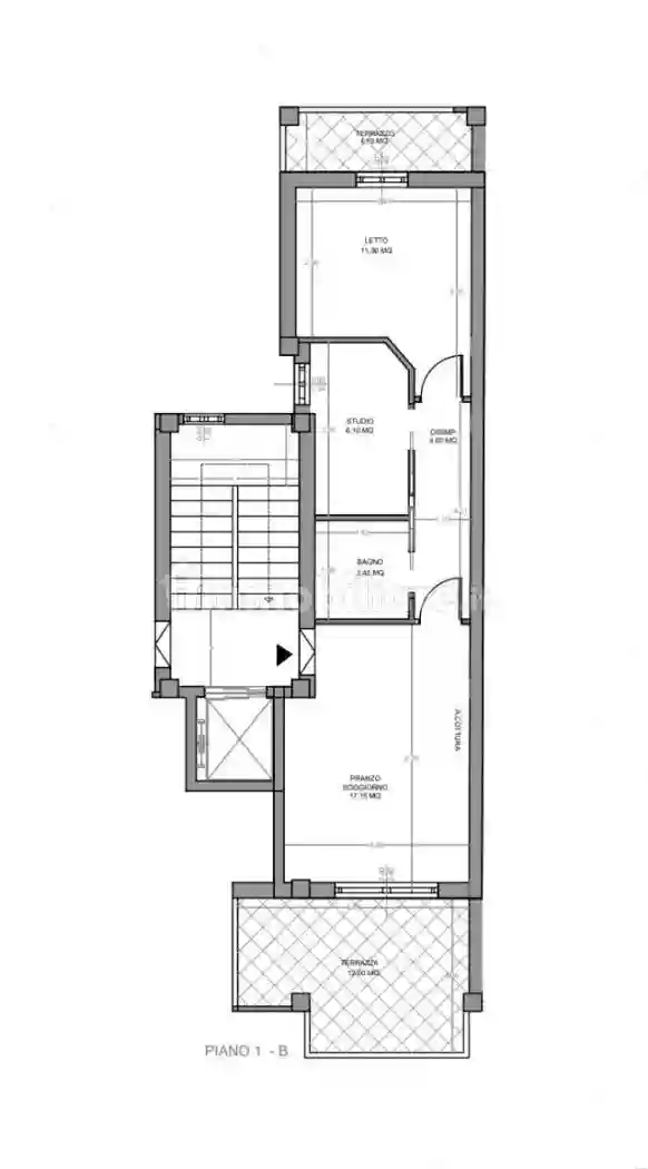
Descrizione

Riservato trilocale di nuova costruzione con finiture di pregio e ad alta efficienza energetica, personalizzabile da ampio capitolato é composto da soggiorno con angolo cottura e terrazzo abitabile, disimpegno, camera da letto con balcone, 2^ camera/studio, bagno, termoautonomo. Possibilità posto auto. Consegna prevista fine 2027.

Caratteristiche

Piano 3
Ascensore Si
Stato Nuovo / In costruzione
Riscaldamento Autonomo, ad aria, alimentato a pompa di calore

Servizi e accessori

Cancello elettrico Esposizione doppia Fibra ottica Impianto tv centralizzato Infissi esterni in doppio vetro / legno Porta blindata VideoCitofono

Posizione

Referente

Loft Real Estate - Pier Paolo Giara

Storico

Pubblicato 14 Jan 2026
Aggiornato 18 Feb 2026
Sul mercato 37 giorni
ID Annuncio 118612655

Recensioni

Vedi tutte
G

Gerardo Arena

4.0

Durante il processo mi sono sentito rassicurato e ascoltato, grazie alla pazienza e alla disponibilità del team. Ho trovato in loro un valido supporto, sempre pronti a rispondere alle mie domande in m...