Vendita Villa Luxury

Villa

Merano, Bolzano

Prezzo
359
mq
4
Locali
3
Camere
3
Bagni

Recensisci questo Immobile

Devi essere registrato per lasciare una recensione.

Accedi

Nessuna recensione ancora. Sii il primo!

Descrizione

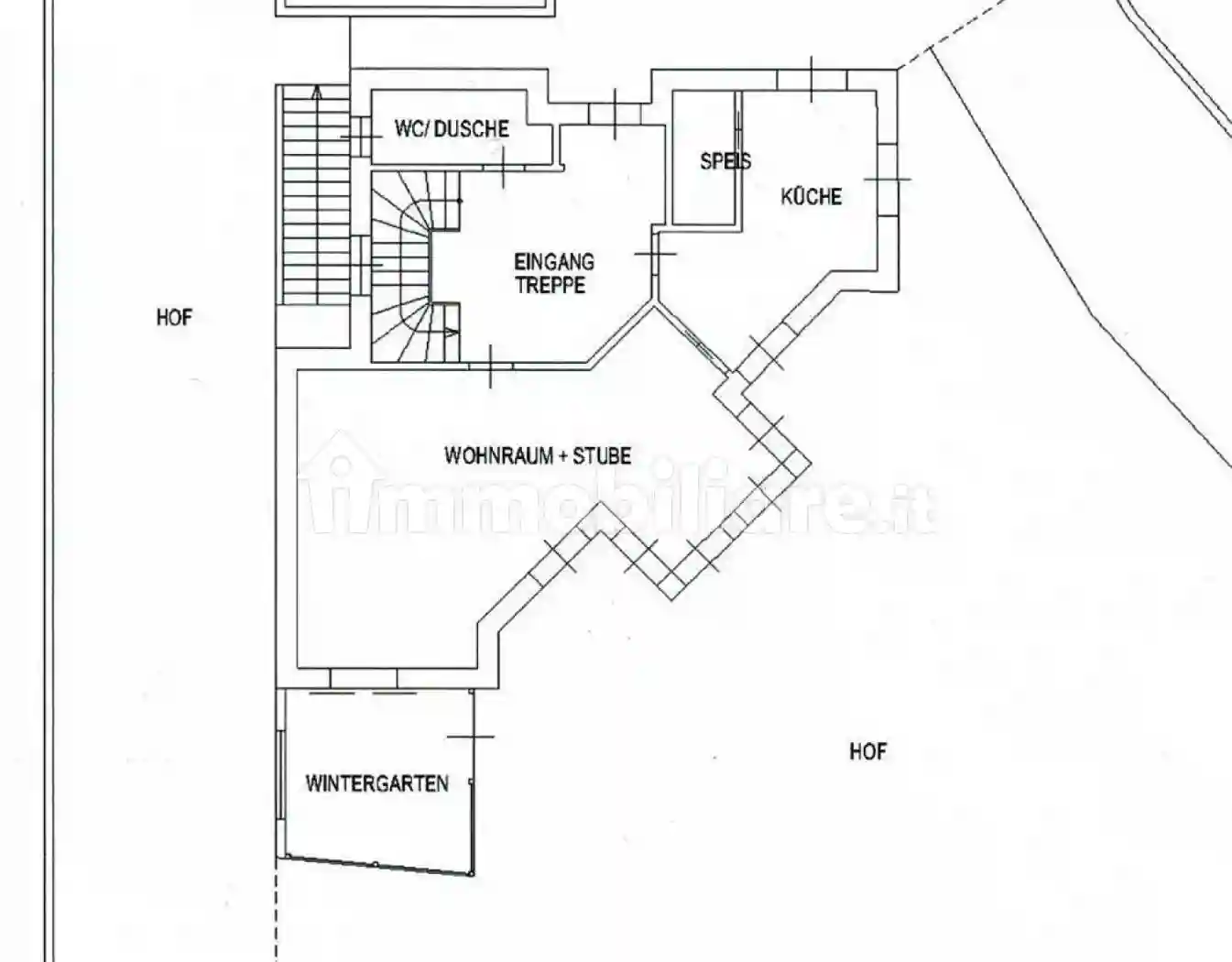
Villetta indipendente situata in prossimità dei giardini di merano e a pochi minuti dal centro città, immersa nel verde agricolo con ampio verde privato di ca. 1200mq, locali spaziosi e molto luminosi. Zona tranquilla e molto soleggiata. Ideale per una famiglia che ama la natura. Possibilità di ampliamento di ca. 70 mq abitabili lordi e di installare una piscina nel verde.

Caratteristiche

Piano T
Stato Ottimo / Ristrutturato
Riscaldamento Autonomo

Servizi e accessori

Cucina Esposizione sud Infissi esterni in vetro / legno

Posizione

Agenzia Immobiliare

Storico

Pubblicato 14 Jan 2026
Aggiornato 26 May 2026
Sul mercato 132 giorni
ID Annuncio 118842455