Appartamento
Vendita
Vendita Appartamento

Appartamento

via Tagliamento, Palazzolo Acreide, Siracusa

110.000 €
129
mq
4
Locali
3
Camere
2
Bagni

Recensisci questo Immobile

Devi essere registrato per lasciare una recensione.

Accedi

Nessuna recensione ancora. Sii il primo!

Descrizione

UniCredit RE Services propone in vendita un elegante appartamento situato al secondo piano di uno stabile signorile del 2005, inserito in un contesto recintato con posti auto.

Questo immobile offre spazi generosi e ben distribuiti, pensati per garantire comfort e funzionalità in ogni dettaglio.
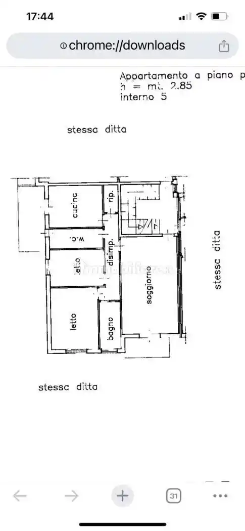
L'ampio salone, dotato di un balcone con una suggestiva vista panoramica sulle campagne di Palazzolo Acreide, è il luogo ideale per momenti di relax e convivialità. La cucina abitabile, anch'essa dotata di un balcone che la illumina con luce naturale, si integra perfettamente con il resto della zona giorno, creando un ambiente accogliente e pratico.
La zona notte comprende una spaziosa camera da letto matrimoniale e due camerette, perfette per ospitare la famiglia o creare ambienti studio e lavoro. L'immobile è completato da un bagno principale ed un bagno di servizio con lavanderia, oltre a un pratico ripostiglio. Un sottotetto, accessibile direttamente dall'appartamento, offre ulteriore spazio di archiviazione e può essere adibito come deposito.

Gli impianti sono a norma e l'immobile dispone di riscaldamento autonomo e climatizzazione, per assicurare il massimo comfort in ogni stagione. La classe energetica è E, garantendo una buona efficienza degli impianti con margine per futuri interventi di miglioramento.

Non è incluso nel prezzo, un ampio garage di 28 mq. che garantisce sicurezza e comodità per il parcheggio, da trattare a parte per 25.000 euro.

Questa proposta rappresenta un'opportunità imperdibile, per chi cerca una soluzione abitativa di pregio in una delle zone più affascinanti di Palazzolo Acreide, dove storia, natura e modernità si fondono armoniosamente.

Per valutare la proposta commerciale personalizzata sulle vostre esigenze, è possibile chiamare il numero verde di UniCredit RE Services 800.896.968.

Caratteristiche

Piano 2
Ascensore No
Stato Ottimo / Ristrutturato
Riscaldamento Autonomo, a radiatori, alimentato a metano

Servizi e accessori

Cancello elettrico Esposizione esterna Impianto tv singolo Infissi esterni in doppio vetro / metallo Porta blindata

Posizione

Referente

UniCredit RE Services - Sicilia

Storico

Pubblicato 14 Jan 2026
Aggiornato 18 Feb 2026
Sul mercato 36 giorni
ID Annuncio 118958963

Recensioni

Vedi tutte
S

Stefania Ferretti

4.7

Se stai cercando un'agenzia seria, ti consiglio di rivolgerti a loro. Ho trovato facilmente un appartamento più grande per la mia famiglia grazie alla loro ampia scelta di immobili e all’attenzione ch...

N

Nadia Palermo

4.3

Le mie precedenti esperienze con agenzie immobiliari mi avevano lasciato un po’ delusa, ma questa volta sono stata sorpresa in positivo. Mi sono sentita seguita con molta cura e attenzione ai dettagli...

I

Ilaria Vecchi

4.7

Stavo cercando un appartamento in affitto a Palermo per trasferirmi per lavoro e sono stata felicissima di aver trovato questa agenzia. Mi sono sentita seguita passo passo con molta chiarezza e sereni...

M

Monica Tagliaferri

4.7

Ho scelto questa agenzia perché mi ha colpito la loro puntualità negli appuntamenti e la chiarezza nelle spiegazioni. Sono stata molto soddisfatta del supporto che mi hanno dato durante la vendita del...