Vendita Villa

Villa

Santa Maria a Monte, Pisa

230.000 €
177
mq
5+
Locali
7
Camere
2
Bagni

Recensisci questo Immobile

Devi essere registrato per lasciare una recensione.

Accedi

Nessuna recensione ancora. Sii il primo!

Descrizione

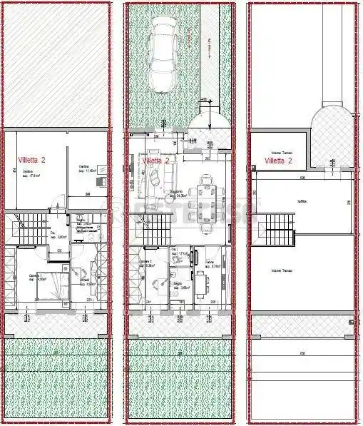
ECCOCASA PT63L - A Montecalvoli, in zona panoramica e collinare, villette nuove in costruzione, iniziate nel 2009, in blocchi di 4 unità, ingresso indipendente, disposte su 3 livelli, composte da 3 camere (2 camere + studio), cucina, grande zona soggiorno-pranzo, 2 cantine, ripostiglio, stupenda mansarda di 60 mq, terrazzo e balcone, giardino davanti e dietro. Possibilità di modifica dei locali per adattarsi alle esigenze dell'acquirente. Superficie complessiva di 177 mq commerciali, 180 calpestabili. Attualmente al grezzo da terminare, presumibilmente a fine 2022. Zona PEEP. Classe energetica F. INDIPENDENTE - GIARDINO - 3 CAMERE. Il prezzo si riferisce alla villetta d'angolo, acquisto da impresa con IVA.

Caratteristiche

Riscaldamento Autonomo

Referente

Eccocasa

Storico

Pubblicato 24 Feb 2026
Aggiornato 26 Feb 2026
Sul mercato 3 giorni
ID Annuncio 118960573

Recensioni

Vedi tutte
L

Liliana Giannini

4.3

Cercavo una casa a Casciana Terme Lari dopo anni di affitto e finalmente l'ho trovata grazie a questa agenzia. Mi sono sentita seguita e ascoltata in ogni fase, con molta cura dei dettagli che ha reso...