Vendita Appartamento

Appartamento

Via Dalla Chiesa, 5, Siziano, Pavia

Prezzo
136
mq
4
Locali
3
Camere
2
Bagni

Recensisci questo Immobile

Devi essere registrato per lasciare una recensione.

Accedi

Nessuna recensione ancora. Sii il primo!

Descrizione

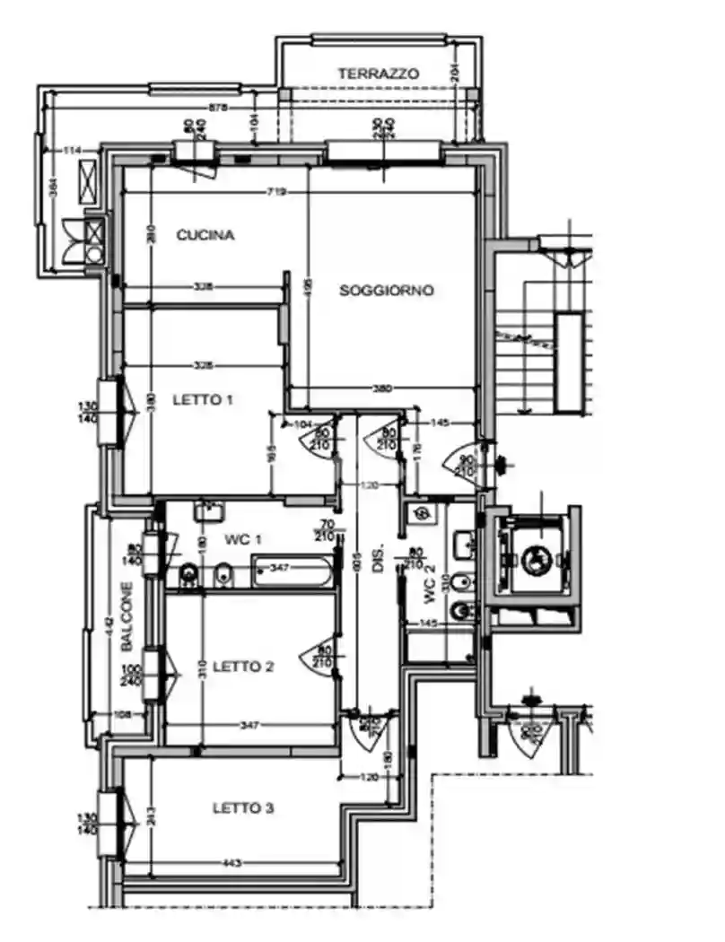
SIZIANO: RESIDENZA CORALLO - Appartamenti composti da sala con terrazzo, cucina abitabile, tre camere e due bagni e balcone. Cantina e box al piano terra. Possibilità di soluzioni di diverse metrature e con giardino.
Consegna autunno 2027

Il progetto prevede l'edificazione di palazzine di quattro piani, tutte dotate di ascensore, che ospiteranno appartamenti di 2-3-4 locali, di varie tipologie per soddisfare le diverse esigenze abitative.
L'architettura delle palazzine si distinguerà per le facciate predominantemente realizzate in mattoni a vista, con particolare attenzione alla costruzione in muratura finalizzata al contenimento energetico e acustico, garantendo così un elevato standard di comfort abitativo.
Il complesso si distinguerà anche per la sua sostenibilità ambientale, in quanto il fabbisogno energetico delle parti comuni sarà assicurato attraverso un impianto fotovoltaico posizionato sopra al tetto dei box.
Il capitolato di alto livello riflette la cura nei dettagli e l'attenzione alla qualità dei materiali adottati. Tra le caratteristiche principali, si evidenziano:
- Serramenti esterni in legno bianco, dotati di triplo vetro e zanzariere, che conferiscono un'eleganza raffinata ed elevati standard di isolamento.
- Avvolgibili elettrificati in alluminio, garantendo una gestione agevole e automatizzata dell'apertura e della chiusura degli stessi.
- Pavimentazione in gres porcellanato, posata e fugata con precisione, per un'estetica moderna e una manutenzione agevole.
- Porta blindata, garanzia di sicurezza e protezione per gli abitanti.
- Porte interne in laminato bianco, che uniscono funzionalità ed estetica, integrandosi armoniosamente con lo stile degli interni.
- Impianto di riscaldamento a pavimento con pompa di calore a corrente, per un comfort termico ottimale e una gestione efficiente dell'energia.
- Impianto di raffrescamento con deumidificatore a pavimento e termostato in ogni locale, permettendo un controllo personalizzato della temperatura in ogni ambiente.
- Videocitofono, che contribuisce alla sicurezza dell'intero complesso attraverso il controllo degli accessi.
La Residenza Corallo si propone così come un'eccellente soluzione abitativa, coniugando design accurato, tecnologia e un'attenzione scrupolosa alla qualità costruttiva.

Caratteristiche

Piano 2
Ascensore Si
Stato Nuovo / In costruzione
Riscaldamento Autonomo, a pavimento

Posizione

Referente

Affiliato Tecnocasa: STUDIO LACCHIARELLA SAS

Storico

Pubblicato 07 Mar 2026
Aggiornato 19 May 2026
Sul mercato 75 giorni
ID Annuncio 119002451

Recensioni

Vedi tutte
T

Tiziana Mercuri

5.0

Ho scelto questa agenzia perché mi ha colpito la loro flessibilità negli orari e la professionalità dimostrata fin dal primo momento. Sono stata seguita con pazienza e competenza durante tutto il proc...

O

Olga Leone

4.7

Ricordo ancora il momento in cui ho trovato l'appartamento perfetto in pochi giorni grazie alla loro rapidità e professionalità. Sono stata seguita con attenzione e mi sono sentita al sicuro, perché h...

G

Gabriella Finzi

4.3

Durante il processo mi sono sentita molto rassicurata, perché ho trovato un'agenzia professionale e seria che mi ha seguita con attenzione e pazienza. Sono stata colpita dalla precisione nella documen...