Vendita Appartamento

Appartamento

Via Unione, 11, Rovereto, Trento

Prezzo
97
mq
3
Locali
2
Camere
1
Bagni

Recensisci questo Immobile

Devi essere registrato per lasciare una recensione.

Accedi

Nessuna recensione ancora. Sii il primo!

Descrizione

Borgo Sacco, in posizione ideale per tranquillità e per la vicinanza al centro, nuova realizzazione di sole 11 unità abitative in classe energetica "A+" .
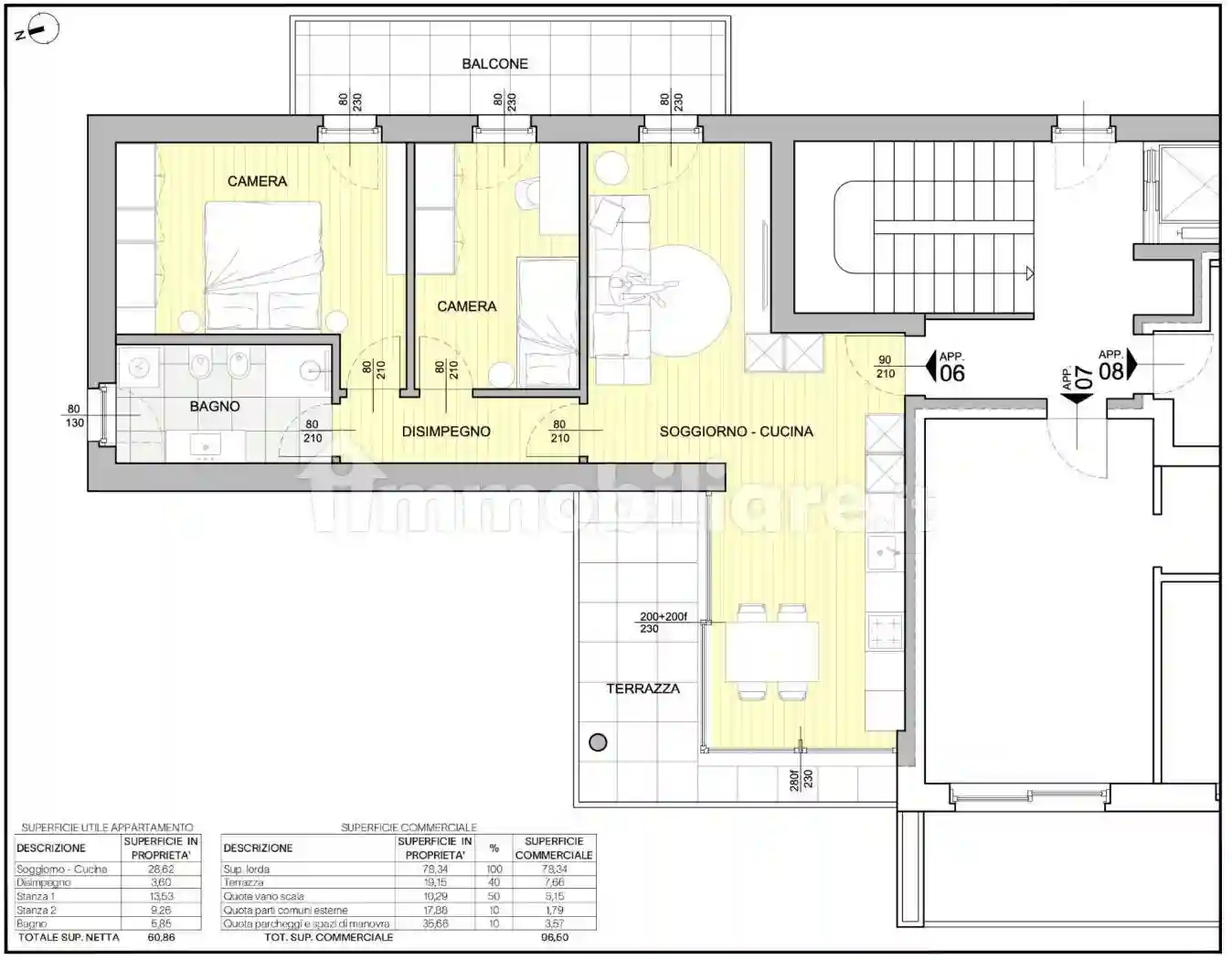
IN ESCLUSIVA, appartamento al secondo piano composto da soggiorno-cucina servito da terrazza, due camere da letto, balcone e bagno finestrato.
Disponibilità acquisto garage e cantina.
Possibilità di personalizzazione interna e scelta finiture.
RECUPERO FISCALE CON BONUS ACQUISTI.
Consegna autunno 2026
Maggiori informazioni e dettagli in ufficio.

Caratteristiche

Piano 2
Ascensore Si
Stato Nuovo / In costruzione

Servizi e accessori

Cancello elettrico Esposizione esterna Impianto tv singolo Infissi esterni in triplo vetro / PVC Porta blindata VideoCitofono

Posizione

Referente

Soluzione Immobiliare

Storico

Pubblicato 14 Jan 2026
Aggiornato 26 May 2026
Sul mercato 132 giorni
ID Annuncio 119037449

Recensioni

Vedi tutte
R

Raffaella Tibaldi

4.3

Ho trovato la casa al mare perfetta grazie a questa agenzia, avevano un'ampia scelta di immobili e sono stati davvero gentili e professionali lungo tutto il processo. Mi sono sentita seguita e aiutata...

O

Olga Ottaviani

4.3

Ricordo ancora il sorriso quando ho trovato quel bellissimo appartamento più grande, proprio quello che cercavo per la mia famiglia in crescita. Mi hanno seguita passo dopo passo durante le visite, fa...

C

Carla Lombardi

4.3

Come con altre esperienze che avevo avuto, cercavo un’agenzia affidabile e competente, e questa volta è stata una scoperta positiva. Mi sono trovata subito seguita da professionisti molto precisi nell...

M

Marina Mariani

4.0

Dalle mie precedenti esperienze con altre agenzie, avevo già capito quanto sia importante affidarsi a professionisti seri e preparati. In questo caso, sono stata davvero soddisfatta della loro attenzi...