Vendita Villa Luxury

Villa

Via solidarietà, Granarolo dell'Emilia, Bologna

Prezzo
179
mq
4
Locali
3
Camere
3
Bagni

Recensisci questo Immobile

Devi essere registrato per lasciare una recensione.

Accedi

Nessuna recensione ancora. Sii il primo!

Descrizione

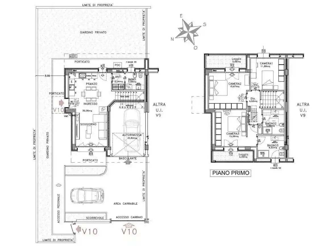
GRANAROLO DELL'EMILIA: nel cuore del paese, all'interno del nuovo comparto residenziale in fase di realizzazione, porzione di VILLA BIFAMILIARE comoda a tutti i servizi e in zona verde, con affaccio sulla campagna bolognese. - NESSUNA PROVVIGIONE. L'intervento rispetterà le normative sul contenimento dei consumi energetici, volto a garantire affidabilità, confort, sicurezza, bassi consumi e ridotto inquinamento grazie all'utilizzo di energie rinnovabili senza l'impiego di gas metano e permetterà autonomia di utilizzo. Ogni abitazione sarà dotata di un impianto solare fotovoltaico privato di 5kwp e predisposto per l'eventuale installazione di sistemi d'accumulo. Disposta su 2 livelli, il piano terra sarà composto da Ingresso su Soggiorno con Cucina a vista, antibagno e Bagno finestrato. Al piano superiore 2 Camere matrimoniali (entrambe con affaccio su terrazze loggiate) e Camera doppia, 2 Bagni finestrati. Al piano terra completa l'immobile ampio Garage e Giardino privato su 3 lati di 175mq. Rif.V2
Per maggiori informazioni 051.6056506 oppure 334.7076586 (anche whatsapp).
Forniamo Valutazioni gratuite per la permuta del vostro immobile in caso di necessità di vendita o locazione. Siamo inoltre affiancati da patner locali che possiedono specifiche competenze notarili, creditizie, tecniche e legali, sempre pronti ad offrire la loro consulenza.

Caratteristiche

Piano T
Ascensore No
Stato Nuovo / In costruzione
Riscaldamento Autonomo, a pavimento, alimentato a pompa di calore

Servizi e accessori

Esposizione esterna Impianto tv singolo Infissi esterni in doppio vetro / PVC Porta blindata VideoCitofono

Posizione

Referente

Affiliato Tecnocasa: AZIENDA.NET SRL

Storico

Pubblicato 12 Jan 2026
Disattivato 07 Mar 2026
Sul mercato 94 giorni
ID Annuncio 119069193

Recensioni

Vedi tutte
T

Tania Colosimo

4.7

Ho finalmente trovato la casa dei miei sogni grazie a un'assistenza rapida e impeccabile. Sono stata seguita con molta attenzione e professionalità in ogni fase, rendendo tutto il percorso molto più s...

O

Ornella Cavalli

4.0

Ho avuto un'esperienza fantastica con questa agenzia immobiliare a Granarolo dell'Emilia. Sono stata seguita con tanta attenzione e gentilezza, e hanno ascoltato ogni mia esigenza con pazienza e profe...