Vendita Villetta a schiera

Villetta a schiera

San Bonifacio, Verona

Prezzo su richiesta
220
mq
1
Locali

Recensisci questo Immobile

Devi essere registrato per lasciare una recensione.

Accedi

Nessuna recensione ancora. Sii il primo!

Descrizione

Appena fuori dal centro proponiamo una casa a schiera in costruzione con ingresso pedonale indipendente e due accessi carrai su un lotto privato di ben 1500 mq. La proprietà si sviluppa su tre livelli: al piano terra troviamo un ampio soggiorno luminoso che comunica direttamente con la cucina, creando uno spazio ideale per momenti conviviali. Al primo piano sono situate tre camere da letto confortevoli e tre bagni.
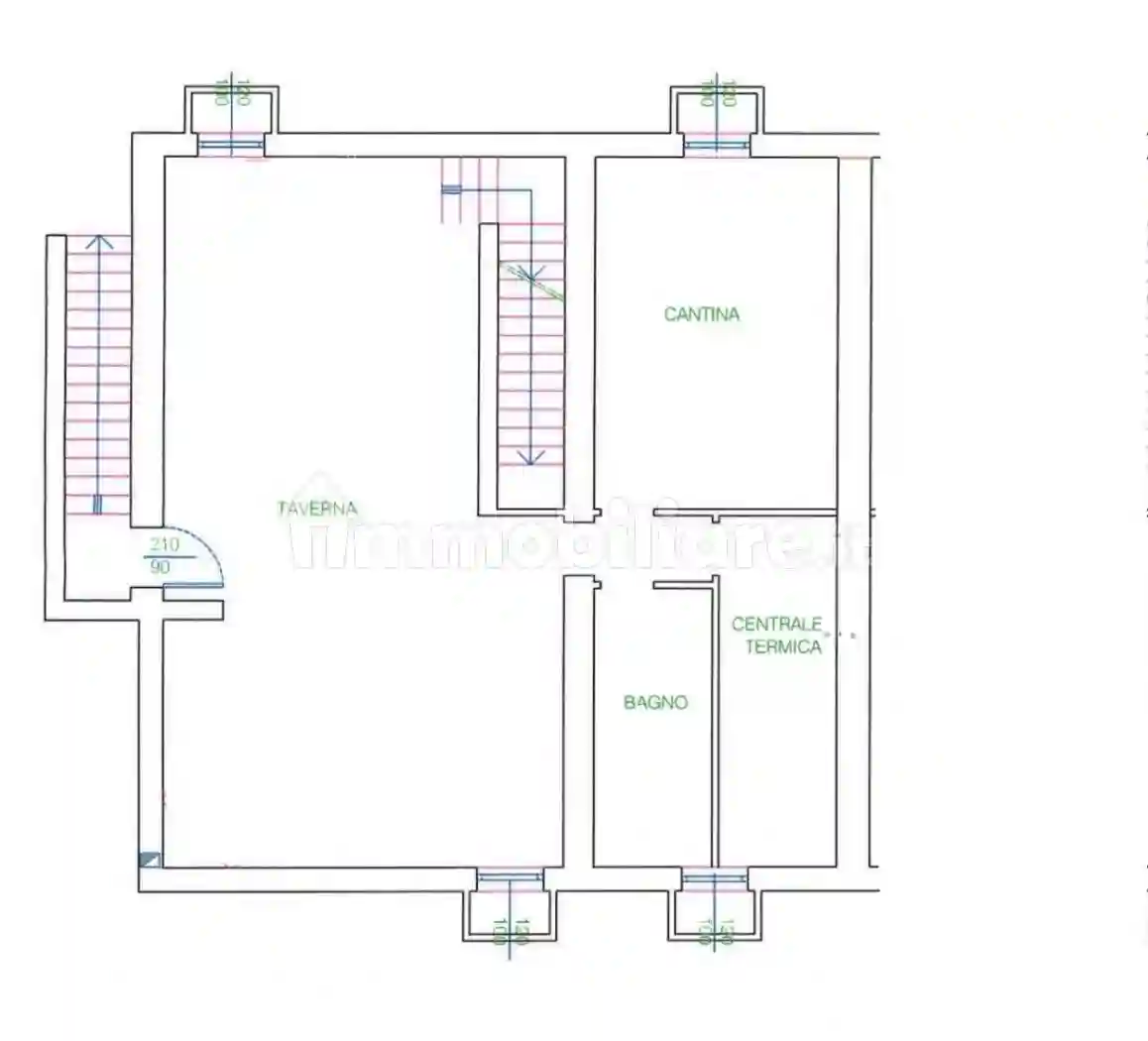
Il piano interrato offre ulteriori vantaggi: una taverna accogliente, lavanderia , cantina/palestra e un ampio garage rendono questa abitazione completa ed estremamente funzionale.

Inoltre, c'è la possibilità di personalizzare le finiture secondo i propri gusti e desideri.

Chiamaci per maggiori informazioni.

Caratteristiche

Piano T
Ascensore No
Stato Nuovo / In costruzione

Referente

Immobiliare Piasente di Avogaro Silvano

Storico

Pubblicato 15 Jan 2026
Aggiornato 24 Feb 2026
Sul mercato 40 giorni
ID Annuncio 119083231

Recensioni

Vedi tutte
V

Vincenzo Oliveri

5.0

Ricordo ancora il momento in cui ho firmato il contratto, tutto molto rapido e senza intoppi. L'agente è stato flessibile negli orari, riuscendo ad adattarsi alle mie esigenze, cosa che ho molto appre...

E

Ernesto Zampieri

5.0

Mi sono rivolto a questa agenzia perché cercavo un supporto serio e trasparente per trovare un affitto a Verona, visto il mio trasferimento per lavoro. Sono stato molto colpito dalla loro disponibilit...

J

Jessica Bellini

4.7

Durante tutto il processo mi sono sentita davvero supportata e rassicurata, grazie alla professionalità e alla gentilezza del team. Sono stata seguita passo passo, anche nella gestione del mutuo, e ho...

I

Ivano Testa

4.3

Se cercate un'agenzia immobiliare affidabile, consiglio di affidarsi a chi dimostra cortesia e puntualità in ogni appuntamento. Ho trovato questo team molto professionale e attento alle mie esigenze,...

T

Teresa Gallo

4.0

Ho scelto questa agenzia perché cercavo qualcuno che mi seguisse con professionalità e gentilezza in una fase così importante. Sono stata davvero colpita dalla loro tempestività nelle risposte e dalla...