Appartamento
Asta
Asta Appartamento

Appartamento

Via Claudio Monteverdi, Stagno Lombardo, Cremona

33.202 €
85
mq
3
Locali
2
Camere

Recensisci questo Immobile

Devi essere registrato per lasciare una recensione.

Accedi

Nessuna recensione ancora. Sii il primo!

Descrizione

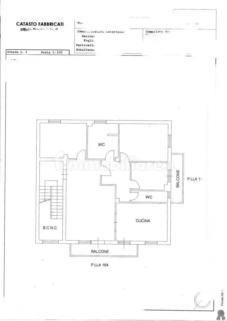
Appartamento posto al piano terra di villetta bifamiliare composto da soggiorno, cucina abitabile, disimpegno, due camere da letto, bagno. Cantina, autorimessa e porzione di giardino in comproprietà.

L’immobile in pubblicità verrà venduto dal Tribunale tramite un’asta pubblica e presenta delle caratteristiche molto interessanti ed un prezzo estremamente conveniente.
AGL ASTE IMMOBILIARI SRL è la società di consulenza leader in Italia, con oltre 170 uffici su tutto il territorio, che segue il cliente in tutto il percorso relativo all'acquisto tramite asta giudiziaria grazie agli oltre 1.000 professionisti tra geometri, avvocati e commercialisti che gravitano all’interno della nostra rete.
Oltre 10.000 persone, in questi ultimi mesi, hanno dato fiducia ai nostri servizi quali:
- un portale in costante aggiornamento con l’elenco completo di tutti gli immobili delle banche e quelli oggetto di aste, fallimenti e concordati;
- una consulenza tecnica, legale e finanziaria preventiva;
- la ricerca, l’acquisizione e l’analisi della documentazione inerente l’ immobile oggetto d’interesse;
- Il sopralluogo con un tecnico incaricato per la visione del bene da aggiudicarsi;
- lo studio di fattibilità economica per la migliore strategia da adottare in asta rendendo così semplice e sicuro l’acquisto di un immobile nel mercato giudiziario;
- la partecipazione all’asta con un nostro professionista;
- l’assistenza completa sulle eventuali problematiche giudiziali prima e dopo l’acquisto;
- un canale preferenziale per l’ottenimento del miglior mutuo disponibile sul mercato, anche del 100 %, grazie agli accordi con oltre 30 istituti di credito per avere così il costo del mutuo inferiore al prezzo di un affitto;
- un accordo esclusivo con i creditori per restituire il debito ad un importo inferiore rispetto a quello in origine evitando, così, la perdita dell’immobile (questo servizio riservato agli esecutati).

Chiama subito il numero e fissa un appuntamento per ottenere la tua consulenza senza impegno e visita il nostro sito https://www.aglasteimmobiliari.it.

Le foto pubblicate potrebbero non corrispondere all'immobile specifico, i documenti ufficiali sono visionabili in filiale.

Caratteristiche

Piano Piano terra
Ascensore No
Stato Buono / Abitabile
Riscaldamento Autonomo
Garage 1 in box privato/box in garage

Servizi e accessori

Cucina Impianto tv centralizzato Cantina Giardino comune Infissi esterni in vetro / legno Esposizione doppia

Posizione

Storico

Pubblicato 04 Jan 2026
Aggiornato 15 Feb 2026
Sul mercato 48 giorni
ID Annuncio 119291779

Recensioni

Vedi tutte
L

Livio Pecoraro

4.7

Dopo aver cercato in passato senza molta fortuna, questa volta ho trovato quello che cercavo in modo semplice e senza stress. L'agenzia si è dimostrata super flessibile sugli orari e molto professiona...

R

Renzo Margiotta

4.3

Ho trovato il magazzino perfetto per la mia azienda grazie a un’agenzia immobiliare davvero seria e trasparente. Sono stato seguito con attenzione e onestà in ogni fase, il che mi ha dato molta fiduci...

K

Katia Barbieri

5.0

Stavo cercando una seconda casa al mare e l’agenzia è stata fantastica nel seguirmi passo dopo passo. Sono stata molto soddisfatta del loro accompagnamento durante le visite, sempre pazienti e disponi...

S

Silvia Ciccone

4.7

Appena ho visto le visite guidate e la disponibilità negli orari, ho capito che avevo trovato l’agenzia giusta. Mi sono sentita seguita e aiutata passo dopo passo, anche con le esigenze più urgenti. S...

S

Silvano Spano

4.3

Stavo cercando un magazzino nella zona di Cremona e ho trovato l’agenzia che ha saputo ascoltare le mie esigenze e offrirsi subito disponibile. Ho apprezzato molto l'onestà nelle valutazioni e la comp...