Vendita Appartamento

Appartamento

Via dei Laghi, 7, Oulx, Torino

115.000 €
Ottimo Affare: 37% sotto la media
86
mq
3
Locali
2
Camere
1
Bagni

Recensisci questo Immobile

Devi essere registrato per lasciare una recensione.

Accedi

Nessuna recensione ancora. Sii il primo!

Descrizione

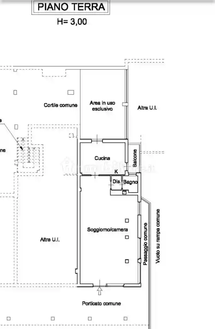
OULX in via dei Laghi n.7 Proponiamo in vendita ex negozio con cambio destinazione d'uso in civile abitazione già depositato in comune. Immobile composto da doppio ingresso, grande vano con quattro ampie finestre, canna fumaria, un secondo vano con attacchi cucina , balcone, disimpegno e bagno finestrato. Il grandi spazi interni permettono di creare un trilocale su misura ideale per passare le vacanze estive ed invernali. € 115.000 TRATTABILI Riscaldamento autonomo con caldaia a gasolio dismessa dal 2012 ca.. Comodo a tutti i servizi, al centro di Oulx e alla stazione. Nelle foto ci sono alcuni esempi di trasformazione puramente indicativi
Attestato di prestazione energetica in Classe G
www.vanzoimmobiliare.it
Agenzia in via dei Laghi n. 7 Oulx(TO)
Agenzia in via F. Juvarra n. 18 Torino
Agenzia in via Cernaia n. 1 Torino
CONTATTI 392 3768228 - 011 5619141 - Ad Oulx sono site due uscite dell'Autostrada A32, Torino-Bardonecchia, aperta al traffico all'inizio degli anni '90, tramite la quale si raggiunge Torino in 40 minuti. La stazione di Oulx-Cesana-Claviere-Sestriere-(TGV) è situata sulla linea ferroviaria del Frejus. Dalla stazione di Oulx partono servizi di autobus per tutte le località della Alta Valle Susa e per Briançon.
VANZO IMMOBILIARE mette a vostra disposizione la sua esperienza nel settore immobiliare maturata nel corso degli anni, la sua cortesia e competenza. La nostra esperienza al vostro servizio dal 1981. La nostra volontà di offrirvi servizi di livello sempre alto rendono semplice la compravendita e l'affitto di immobili, guidandovi e consigliandovi con cura e trasparenza in tutte le fasi della trattativa fino alla realizzazione finale

Caratteristiche

Piano T
Ascensore No
Stato Da ristrutturare
Riscaldamento Autonomo, a radiatori, alimentato a gasolio

Servizi e accessori

Cancello elettrico Esposizione doppia Impianto tv centralizzato Infissi esterni in doppio vetro / legno

Posizione

Referente

Vanzo Immobiliare

Storico

Pubblicato 14 Jan 2026
Aggiornato 25 Feb 2026
Sul mercato 44 giorni
ID Annuncio 119360087

Recensioni

Vedi tutte
S

Sonia Stella

5.0

Grazie di cuore per l'accompagnamento e la professionalità dimostrata. Sono stata molto soddisfatta del supporto ricevuto nelle visite e della cura nel seguire ogni passo, rendendo l'intero processo s...

S

Sofia Pastore

4.7

Se state cercando un'agenzia immobiliare seria e affidabile, vi consiglio di provarci perché qui trovate davvero un'ampia scelta di case e tanta professionalità. Sono stata molto soddisfatta perché so...

P

Patrizia Bertini

4.3

Ho trovato l’appartamento perfetto per la mia famiglia grazie a un’agenzia affidabile e paziente. Mi sono sentita seguita passo dopo passo, con tanta disponibilità e professionalità, e questo mi ha da...

L

Lucia Bianchi

4.3

Ricordo ancora il momento in cui sono arrivata per la visita, tutto era puntuale e ben organizzato, mi sono sentita subito a mio agio. La professionalità e la cortesia dello staff mi hanno aiutata a t...