Vendita Appartamento

Appartamento

Marcon, Venezia

325.000 €
131
mq
4
Locali
3
Camere
2
Bagni

Recensisci questo Immobile

Devi essere registrato per lasciare una recensione.

Accedi

Nessuna recensione ancora. Sii il primo!

Descrizione

Presentiamo un nuovo complesso residenziale di prossima realizzazione, situato in posizione centrale e strategica, perfetta per chi desidera vivere a pochi passi da tutti i servizi e le comodità del centro cittadino.

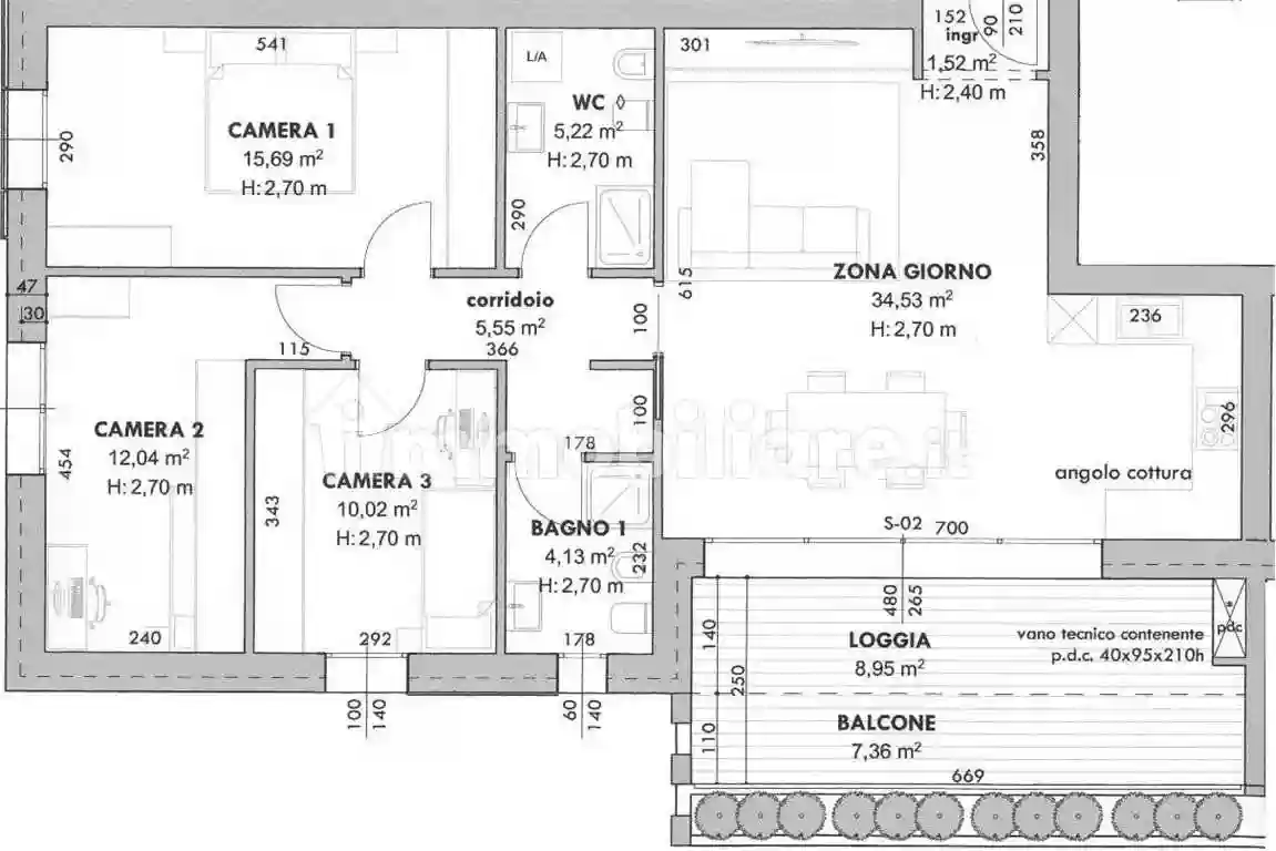
Al piano primo appartamento 3 camere , composto da soggiorno pranzo con vetrata che affaccia su terrazza abitabile, disimpegno, 3 ampie camere, 2 bagni, garage e posto auto.

Gli appartamenti, sono tutti progettati con un occhio attento alla sostenibilità, vantano una classe energetica elevata, garantendo comfort e risparmio energetico.
La tecnologia costruttiva all'avanguardia assicura non solo un design moderno e accattivante, ma anche la massima sicurezza e durabilità.
Ogni appartamento è dotato di riscaldamento a pavimento con impianto autonomo in pompa di calore, 3kw di fotovoltaico, tapparelle motorizzate, predisposizione dell’impianto di condizionamento, di allarme e di automazione del basculante.
Ogni unità è realizzata con un capitolato di alta qualità, che include finiture eleganti e materiali selezionati, per offrire un ambiente accogliente e raffinato.
Questi sono immobili dove innovazione e comfort si incontrano!
Rif. A992-2V

Caratteristiche

Piano 1
Ascensore Si
Stato Nuovo / In costruzione
Riscaldamento Autonomo, alimentato a fotovoltaico

Servizi e accessori

Infissi esterni in triplo vetro / PVC Porta blindata VideoCitofono

Posizione

Referente

Agenzia Realty Marcon

Storico

Pubblicato 14 Jan 2026
Aggiornato 24 Feb 2026
Sul mercato 40 giorni
ID Annuncio 119463935

Recensioni

Vedi tutte
S

Simone Baldi

4.3

Appena ho messo piede in agenzia ho notato subito la professionalità e la cortesia del team, che mi ha seguito passo dopo passo nella vendita del mio locale commerciale. La loro attenzione ai dettagli...

S

Simona Zampieri

4.3

Apprezzavo molto la chiarezza con cui sono state spiegate tutte le fasi del procedimento, senza lasciare niente al caso. La gestione burocratica è stata efficiente e senza intoppi, il che mi ha permes...