Vendita Appartamento

Appartamento via del Lago 22, Campo di Giove

Via del Lago, Campo di Giove, L'Aquila

Prezzo
40
mq

Recensisci questo Immobile

Devi essere registrato per lasciare una recensione.

Accedi

Nessuna recensione ancora. Sii il primo!

Descrizione

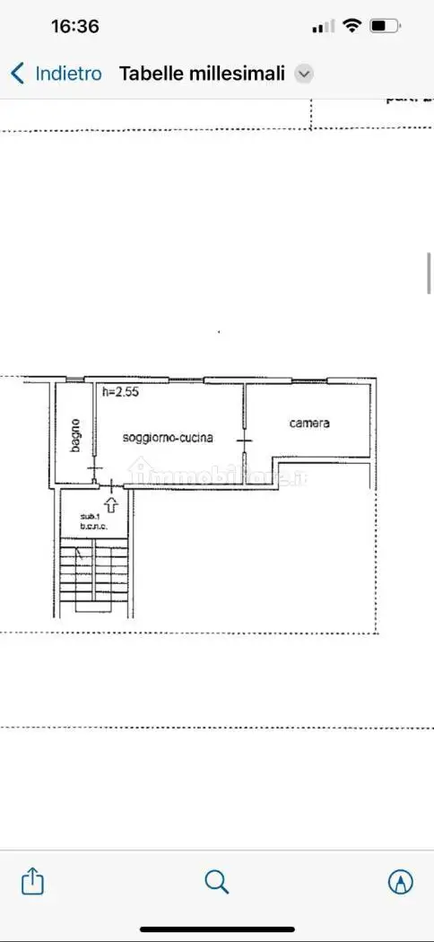
Vendo casa 40mq via del lago 22 a campo di Giove . Prezzo trattabile contesto signorile e semi indipendente .

Piano rialzato , condominio i falchi . La vendo completa di arredamento, stufa a Pellet e caldaia. L’appartamento è dotato anche di piccola cantinola .(ottimo investimento se utilizzata anche come casa vacanza, tutto dimostrabile)

Caratteristiche

Piano Piano terra
Stato Ottimo / Ristrutturato
Riscaldamento Autonomo

Servizi e accessori

Esposizione sud Impianto di allarme Infissi esterni in doppio vetro / legno

Posizione

Agenzia Immobiliare

Storico

Pubblicato 26 Dec 2025
Aggiornato 21 May 2026
Sul mercato 146 giorni
ID Annuncio 119601083