Vendita Appartamento

Appartamento

Via Antonio Gramsci, Spinetoli, Ascoli Piceno

160.000 €
Buon Prezzo: 22% sotto la media
166
mq
5
Locali
3
Camere
2
Bagni

Recensisci questo Immobile

Devi essere registrato per lasciare una recensione.

Accedi

Nessuna recensione ancora. Sii il primo!

Descrizione

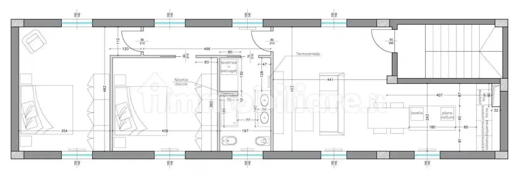
Pagliare del Tronto, in zona centrale e ben servita l'Agenzia Centro Servizi immobiliari propone in vendita ampio appartamento al secondo ed ultimo piano di una piccola palazzina di sole tre unità abitative. L'appartamento si sviluppa su una superficie di mq 145 e si compone di ingresso su ampio soggiorno servito da due balconi di cui uno coperto da tettoia e tenda da sole, cucinino, adiacente al cucinino c'è una zona lavanderia, disimpegno da cui si accede alla zona notte dove troviamo tre camere, camera matrimoniale e due camerette, bagno principale e bagno di servizio. L'appartamento si trova in ottime condizioni parquet in tutte le stanze, aria condizionata nel soggiorno e nelle camere.

Caratteristiche

Piano 2
Ascensore No
Stato Ottimo / Ristrutturato
Riscaldamento Autonomo, a radiatori, alimentato a metano

Servizi e accessori

Esposizione esterna Impianto tv singolo Infissi esterni in doppio vetro / legno Porta blindata

Posizione

Referente

Centro Servizi Immobiliari

Storico

Pubblicato 13 Jan 2026
Aggiornato 25 Feb 2026
Sul mercato 43 giorni
ID Annuncio 119648648

Recensioni

Vedi tutte
T

Tommaso De Matteis

4.7

Appena ho entrato in agenzia, sono stato colpito dall’attenzione che mi hanno dato subito. Mi hanno accompagnato passo passo nelle visite, facendomi sentire sicuro e ben informato, e hanno gestito tut...

A

Alice Orlando

4.7

Le esperienze precedenti con altre agenzie erano state spesso deludenti, ma questa volta sono stata davvero colpita dalla loro onestà nelle valutazioni e dalla puntualità negli appuntamenti. Mi sono t...

S

Sergio Calabrese

4.7

Caldo e un po’ emozionato, ho affrontato questa grande tappa con tanta serenità, grazie all’accompagnamento delle visite che mi hanno fatto sentire sicuro e accompagnato passo dopo passo. La professio...

S

Serena Rossetti

4.7

Ho scelto questa agenzia perché mi hanno colpito la loro attenzione e serietà fin dal primo contatto. Mi hanno ascoltata davvero, capendo le mie esigenze e aiutandomi a trovare la nuovo casa perfetta...

G

Guido Cattaneo

4.3

Dopo essermi trasferito a San Benedetto del Tronto per lavoro, cercavo un bilocale che fosse comodo e ben situato. L'agenzia mi ha seguito con tanta pazienza e trasparenza, ascoltando tutte le mie esi...