Indietro
Casa indipendente
Vendita
Vendita Casa indipendente

Casa indipendente

Via Sbarra, Porcari, Lucca

89.000 €
Ottimo Affare: 77% sotto la media
180
mq
5+
Locali
4
Camere
3
Bagni

Recensisci questo Immobile

Devi essere registrato per lasciare una recensione.

Accedi

Nessuna recensione ancora. Sii il primo!

Descrizione

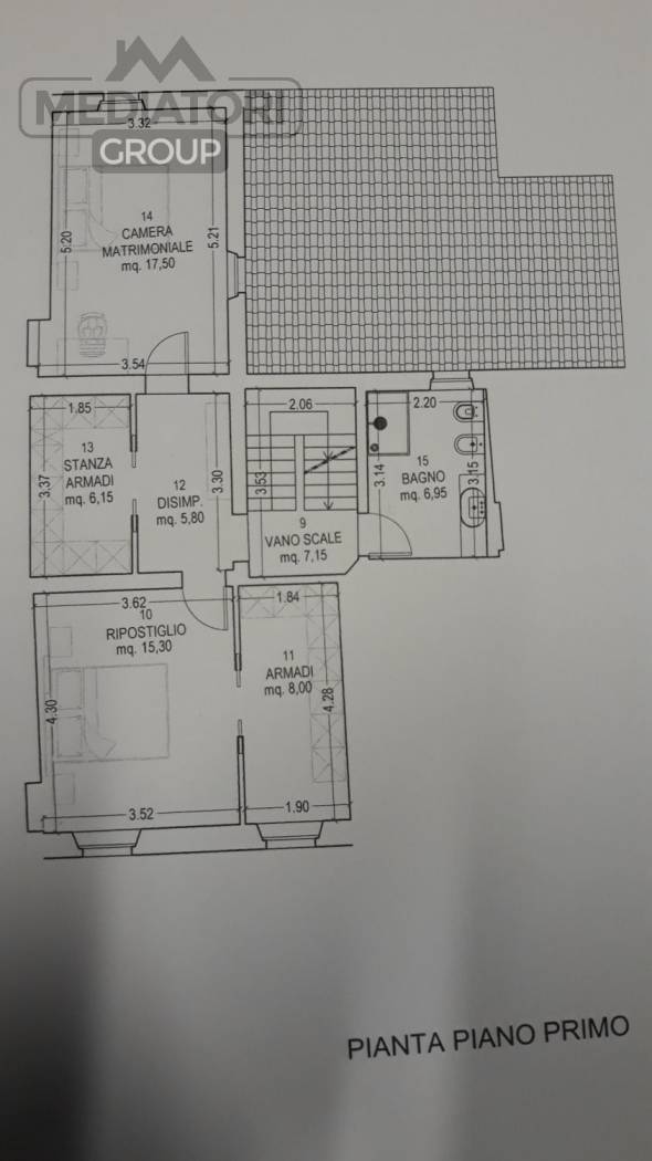
PORCARI: In zona semicollinare, con invidiabile vista sia sulla piana di Lucca che sulla Torretta di Porcari, proponiamo questo interessante terratetto di ampie dimensioni con circa 1600 mq di terreno di proprietà e resede esclusiva per posti auto. La caretteristica principale di questa abitazione è che viene venduta con la ristrutturazione da terminare, consentendo una personalizzazione degli ambienti e delle rifiniture.Nelle foto allegate all'annuncio potete vedere come era stata scelta la distribuzione degli spazi interni. Nello specifico al piano terra troveremo un soggiorno di ingresso, cucina abitabile, ampia sala da pranzo, bagno, ripostiglio e locale tecnico. Il piano primo era stato suddiviso con due camere matrimoniali, di cui una con stanza armadi, bagno finestrato e ulteriore stanza armadi. Al secondo ed ultimo piano,mansardato, troviamo altre tre camere da letto ed un bagno. Attualmente nell'abitazione sono stati rivisti e rinforzati i solai di ogni piano, sostituita la copertura della parte della parte della zona giorno come notiamo dalle foto allegate. Sono presenti recenti e dettagliati preventivi per terminare e rendere completamente abitabile l'abitazione sotto ogni aspetto. Oggetto caratteristico, con metrature difficilmente ritrovabili in altre soluzioni simili e con lo stile rustico in travi e travicelli che si sposa benissimo con la struttura e il contesto in cui ricade l'abitazione. Da vedere e valutare per gli amanti di questo genere.

Caratteristiche

Ascensore No
Stato Da ristrutturare
Riscaldamento Autonomo, a radiatori, alimentato a metano

Servizi e accessori

Caminetto Esposizione esterna Fibra ottica Impianto tv singolo Infissi esterni in doppio vetro / legno Mansarda

Posizione

Referente

Chiara Ricci

Storico

Pubblicato 14 Jan 2026
Aggiornato 19 Feb 2026
Sul mercato 37 giorni
ID Annuncio 119780452

Recensioni

Vedi tutte
A

Adriano Filippini

4.7

Ricordo ancora il momento in cui ho visitato quell’appartamento a Porcari, sembrava fatto su misura per la mia famiglia in crescita. L’agenzia ha seguito ogni dettaglio con molta cura e mi ha spiegato...

M

Marcello Pagano

4.3

Ho appena acquistato la mia prima casa a Porcari e sono davvero felice. L’agenzia è stata rapida ed efficiente nella gestione di tutta la burocrazia, facendomi sentire supportato e seguito passo dopo...

E

Eugenio Palermo

4.3

Durante tutto il processo mi sono sentito molto supportato e ascoltato, il che ha reso tutto più facile nonostante le circostanze. Ho trovato un team sempre tempestivo nelle risposte e molto efficient...

G

Guido Quaranta

4.0

Ho trovato l'appartamento perfetto per i miei figli e sono rimasto molto soddisfatto del lavoro dell'agenzia. Sono stati puntuali agli appuntamenti e hanno sempre mostrato molta cortesia, rendendo tut...