Vendita Appartamento Luxury

Appartamento

Sorrento, Napoli

Prezzo su richiesta
300
mq
5+
Locali
6
Camere
3+
Bagni

Recensisci questo Immobile

Devi essere registrato per lasciare una recensione.

Accedi

Nessuna recensione ancora. Sii il primo!

Descrizione

TRATTATIVA ESCLUSIVAMENTE N SEDE
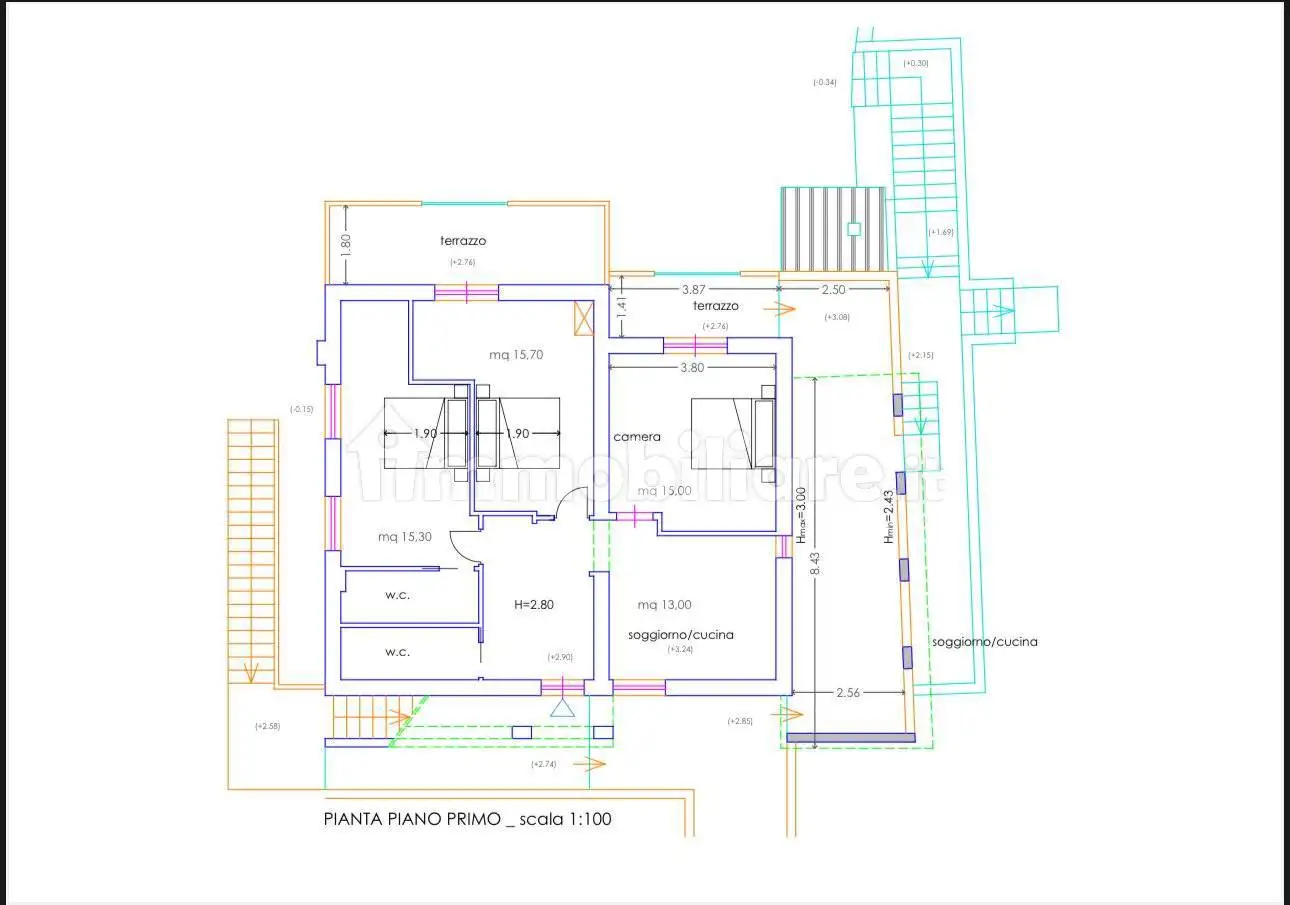
SORRENTO PIAZZA TASSO, proponiamo in vendita Porzione di palazzotto d’epoca articolato su DUE livelli (piano primo e secondo), avente superficie utile complessiva di mq 230, comprendente due unità abitative per complessivi vani 12 catastali. L’abitazione del Primo piano e composta da ingresso, cinque vani, cucina, due bagni e disimpegno; l’abitazione del piano superiore è composta da grande salone (bi-vano) cucina, due camere da letto, bagno e disimpegno.
Trattasi di un palazzotto d’epoca in posizione unica e prestigiosa, direttamente in Piazza “Tasso”, baricentro di tutte le attività socio-economiche della città di Sorrento, per la qualcosa risulta utilizzabile quale dimora di altissimo pregio residenziale e specialmodo, si presta all’eventuale suo utilizzo ad attività extra alberghiera quale “AFFITTACAMERE” e/o “CASA per VACANZE”.

Caratteristiche

Piano 1
Ascensore No
Stato Da ristrutturare
Riscaldamento Autonomo

Servizi e accessori

Esposizione doppia Infissi esterni in vetro / legno

Referente

Futura Immobiliare

Storico

Pubblicato 12 Jan 2026
Aggiornato 24 Feb 2026
Sul mercato 43 giorni
ID Annuncio 119801074

Recensioni

Vedi tutte
D

Debora Masi

4.7

Mi sono subito colpita dalla cura nei dettagli e dalla professionalità che ho riscontrato fin dal primo contatto. La mia ricerca di un appartamento vista mare a Sorrento è stata seguita con grande att...

M

Margherita Granata

4.7

Le mie precedenti esperienze con agenzie immobiliari erano spesso stressanti e poco trasparenti, ma questa volta è andata decisamente meglio. Sono stata seguita con professionalità e puntualità in ogn...