Vendita Villa

Villa unifamiliare Contrada Costa del Monte 20, Centro, Mosciano Sant'Angelo

Contrada Costa del Monte, 20, Mosciano Sant'Angelo, Teramo

Prezzo
120
mq
4
Locali
2
Camere
1
Bagni

Recensisci questo Immobile

Devi essere registrato per lasciare una recensione.

Accedi

Nessuna recensione ancora. Sii il primo!

Descrizione

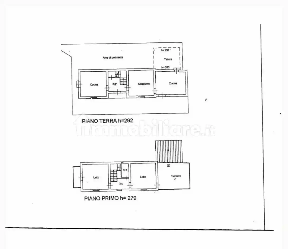
Nel comune di Mosciano Sant’Angelo, a circa 800m dalla centralissima Piazza Aurelio Saliceti, vendesi proprietà composta da:
- n.1 civile abitazione di circa 120 mq abitabile con al piano terra cucina, soggiorno, cameretta/studio e al piano primo: bagno, camera con balcone e camera con terrazzo.
- terreno agricolo di circa 4.200 mq coltivato ad uliveto ed un terreno edificabile di circa 1.400 mq con possibilità edificatoria di circa 850 mq. - - magazzino/garage di circa 40 mq costruito in lamiera.
Classe energetica G> 175 kWh/mq anno da verificare

Caratteristiche

Piano 2 piani: Piano terra, 1°

Servizi e accessori

Cucina Cantina Giardino privato Infissi esterni in doppio vetro / metallo

Posizione

Agenzia Immobiliare

Storico

Pubblicato 11 Jan 2026
Aggiornato 26 Feb 2026
Sul mercato 47 giorni
ID Annuncio 119811930