Vendita Appartamento Luxury

Appartamento

Pisa PI, Pisa, Pisa

742.000 €
168
mq
5
Locali
3
Camere
2
Bagni

Recensisci questo Immobile

Devi essere registrato per lasciare una recensione.

Accedi

Nessuna recensione ancora. Sii il primo!

Descrizione

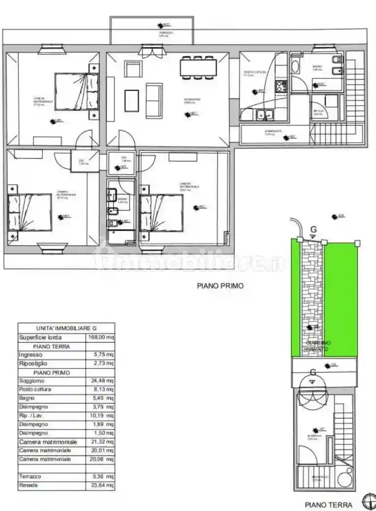
SAN MICHELE: riqualificazione di appartamento indipendente posto al piano primo ed avente ingresso da resede privato di circa 25 mq. Composizione interna: al piano terra comodo ingresso con spazio guardaroba e ripostiglio; al primo piano, mediante scala interna, si accede all' ampio soggiorno/pranzo con balcone, alla zona cottura, al disimpegno notte, alle tre camere matrimoniali e ai doppi servizi. Completano la proprietà un comodo garage di circa 20 mq. ed un posto auto esclusivo all’interno del complesso immobiliare. SGRAVI FISCALI SISMA BONUS PARI AD € 96 MILA IN 10 ANNI.

Caratteristiche

Piano 1
Ascensore No
Stato Ottimo / Ristrutturato
Riscaldamento Autonomo

Servizi e accessori

Porta blindata

Posizione

Zona: San Francesco (Centro)

LA FORTEZZA Immobiliare

Agenzia

Referente

LA FORTEZZA Immobiliare

Storico

Pubblicato 14 Jan 2026
Aggiornato 24 Feb 2026
Sul mercato 42 giorni
ID Annuncio 119966564