Vendita Villa Luxury

Villa

Seravezza, Lucca

470.000 €
120
mq
2
Locali
2
Camere
2
Bagni

Recensisci questo Immobile

Devi essere registrato per lasciare una recensione.

Accedi

Nessuna recensione ancora. Sii il primo!

Descrizione



Nel cuore di una splendida cornice naturale, proponiamo in vendita una villa da realizzare dal design moderno, perfettamente integrata nel paesaggio e pensata per offrire il massimo comfort e privacy.

Caratteristiche principali:
Lotto di terreno di circa 1.700 mq, completamente recintato e piantumato, con ampio giardino privato e zone relax immerse nel verde
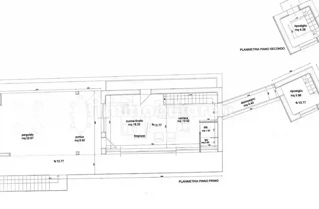
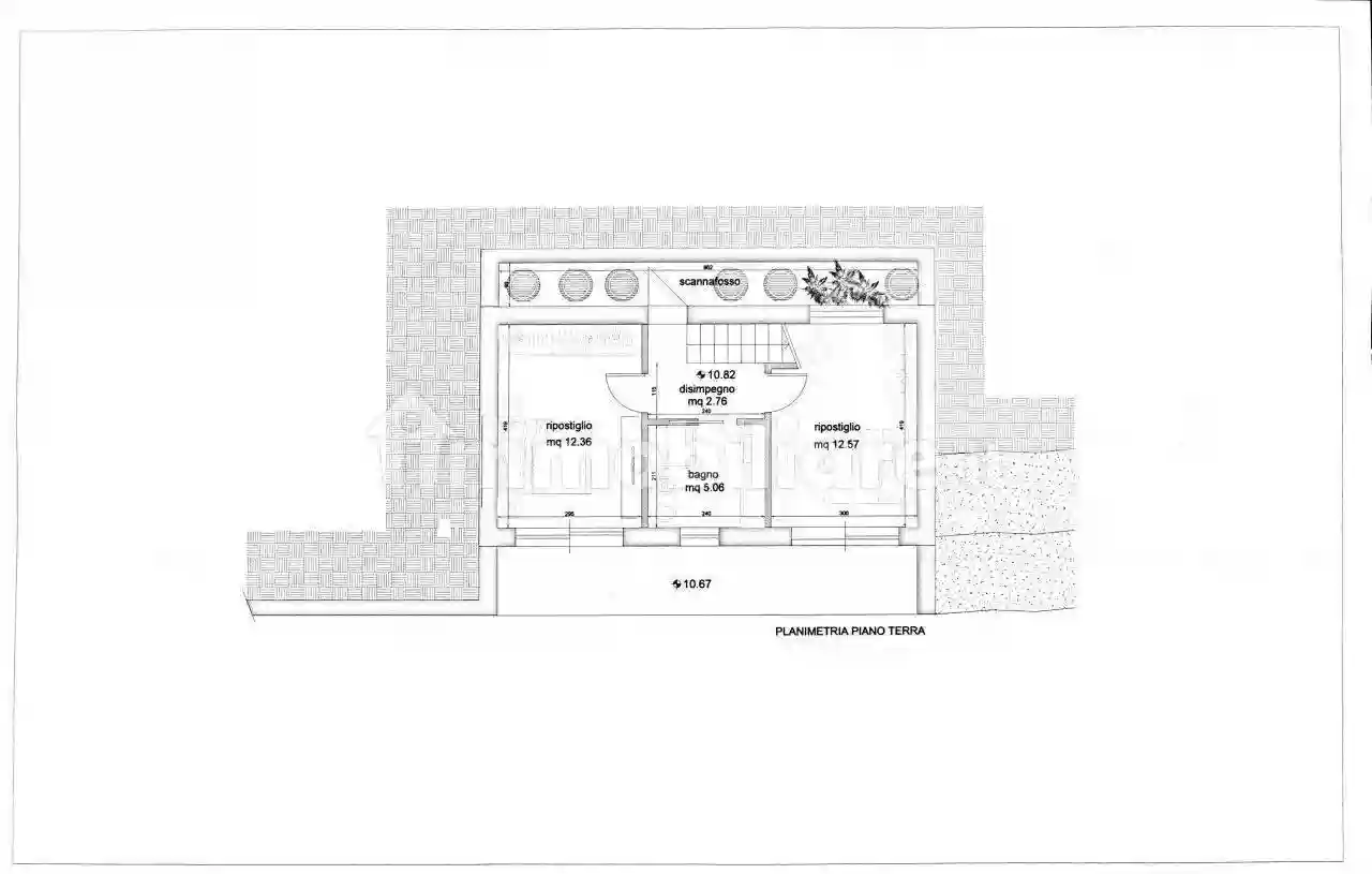
Villa di circa 120 mq disposta su due livelli, progettata con ampie vetrate per una luminosità naturale e una vista mozzafiato sulla campagna circostante
Zona giorno open space con cucina a vista e accesso diretto alla terrazza panoramica coperta, ideale per pranzi e cene all’aperto
Zona notte composta da camere con affaccio sul giardino e accesso indipendente
Piscina privata, perfetta per momenti di relax e convivialità in totale riservatezza
Parcheggio privato per più auto, accessibile comodamente dalla strada principale
Punti di forza:
Architettura contemporanea, materiali di pregio e attenzione al dettaglio
Ampio spazio esterno per vivere la natura e godere di assoluta tranquillità
Soluzioni tecnologiche e impiantistiche di ultima generazione per efficienza energetica e comfort abitativo
Ideale sia come residenza principale che come casa vacanze di prestigio
Questa villa rappresenta la scelta perfetta per chi desidera vivere in un ambiente esclusivo, circondato dal verde ma senza rinunciare a design, funzionalità e privacy.

Non perdere l’occasione di realizzare il tuo sogno: contattaci per maggiori informazioni, planimetrie o per fissare una visita!

Caratteristiche

Ascensore No

Servizi e accessori

Piscina

Agenzia Immobiliare Raffaelli

Agenzia

Referente

Agenzia Immobiliare Raffaelli

Storico

Pubblicato 14 Jan 2026
Aggiornato 24 Feb 2026
Sul mercato 41 giorni
ID Annuncio 119976714