Vendita Villa

Villa

Via dei Laghi, Anzio, Roma

219.000 €
170
mq
4
Locali
3
Camere
3
Bagni

Recensisci questo Immobile

Devi essere registrato per lasciare una recensione.

Accedi

Nessuna recensione ancora. Sii il primo!

Descrizione

Casello 45
Via dei Laghi
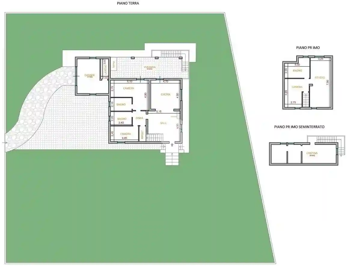
Villa singola di 170 mq. Piano terra di 105 mq composto da: sala, cucina, disimpegno, 2 camere, ripostiglio e 2 bagni. Piano primo di 65 mq composto da: camera, studio e bagno. Cantina di 30 mq, angolo lavanderia e box auto di 27 mq con lavatoio. Veranda di 35 mq e giardino.
RISTRUTTURATA NEL 2023
L'immobile è dotato di condizionatori in sala, cucina e piano primo, termocamino, inferriate, zanzariere e infissi in PVC/legno doppio vetro e allarme perimetrale. Predisposizione allaccio al Gas Metano.
Distanze: 1,3 km dalla Nettunense - 5,4 km dalla Litoranea - 6,4 km dal mare - 3,9 km dalla St. di Padiglione - 2,9 km dalla St. di Campo di Carne
Visionabile previo appuntamento
Via delle Pinete, 141/143
Lido dei Pini Ardea (RM),00040
Numero: 069178189
Whatsapp: 3897846369

Caratteristiche

Ascensore No
Stato Buono / Abitabile
Riscaldamento Autonomo, a radiatori, alimentato a gpl

Posizione

Zona: Spadellata - Cinque Miglia (Lido dei Pini, Spadellata, Cinque Miglia)

Referente

Affiliato Tecnorete: LIDO DEI PINI IMMOBILIARE SRL

Storico

Pubblicato 12 Jan 2026
Aggiornato 24 Feb 2026
Sul mercato 43 giorni
ID Annuncio 120043516

Recensioni

Vedi tutte
F

Fabiana Lodi

5.0

Grazie di cuore per avermi aiutato a trovare il bilocale perfetto! Sono stata molto soddisfatta della competenza dimostrata nella trattativa e della disponibilità continua, che mi hanno messo subito a...

G

Gabriella Lecce

4.7

Se state cercando un'agenzia immobiliare affidabile, vi consiglio di rivolgervi a questa. Mi sono trovata davvero bene: sono stata seguita con grande professionalità e tanta attenzione, sempre pronti...

C

Caterina Gasparini

4.3

Grazie mille per avermi aiutata a trovare l’appartamento vista mare dei miei sogni! Ho trovato un'ampia scelta di immobili e mi sono sentita seguita e trasparente in ogni fase del processo. Sono davve...

B

Barbara Cardone

4.3

Ho trovato la casa dei miei sogni grazie a un’agenzia che si è dimostrata davvero trasparente e attenta alle mie esigenze. La loro assistenza è stata paziente e professionale, facendomi sentire sempre...

A

Aurora Romagnoli

4.0

Se state cercando un’agenzia immobiliare affidabile, vi consiglio di rivolgervi a questa: ho trovato professionalità e trasparenza in ogni fase della trattativa, il che mi ha dato molta fiducia. Sono...