Indietro
Vendita Casa indipendente

Casa indipendente

Via Della Pieve, Massanzago, Padova

Prezzo
150
mq
4
Locali
3
Camere
2
Bagni

Recensisci questo Immobile

Devi essere registrato per lasciare una recensione.

Accedi

Nessuna recensione ancora. Sii il primo!

Descrizione

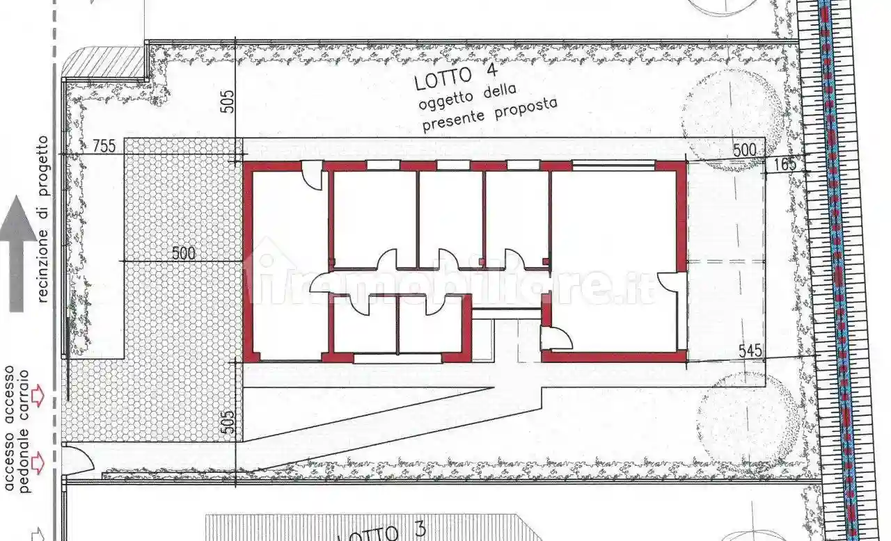
A Zeminiana di Massanzago su piccola lottizzazione in zona super tranquilla, vendiamo stupenda e introvabile casa singola disposta tutta al piano terra su lotto di circa 565 mq. Composta da: zona giorno di circa 40 mq. illuminata da una grande vetrata ad est, 3 camere, 2 bagni finestrati, corridoio e garage. Bellissimo giardino privato con spazio pavimentato adiacente alla grande vetrata della zona giorno per pranzare comodante fuori all’aria aperta nella bella stagione. Alta qualità costruttiva con particolare attenzione al confort abitativo e al massimo risparmio energetico, classe energetica prevista A4. Previsto impianto fotovoltaico, sistema in pompa di calore con riscaldamento a pavimento, predisposizione alla climatizzazione estiva, predisposizione allarme. Consegna finita chiavi in mano con possibilità di totale scelta delle finiture e della disposizione degli spazi interni dei locali, per una abitazione totalmente su misura. A partire da Euro 345.000,00

LE FOTO PUBBLICATE SONO DELLA LOTTIZZAZIONE E DEGLI IMMOBLI GIA' REALIZZATI SU MISURA PER I NOSTRI CLIENTI

Caratteristiche

Piano T
Ascensore No
Stato Nuovo / In costruzione
Riscaldamento Autonomo, a pavimento, alimentato a fotovoltaico

Posizione

Studio Emme S.A.S. di Casazza Mirco&C.

Agenzia

Referente

Studio Emme S.A.S. di Casazza Mirco&C.

Storico

Pubblicato 14 Jan 2026
Disattivato 13 Mar 2026
Sul mercato 91 giorni
ID Annuncio 120322264