Vendita Appartamento

Trilocale via Giosuè Carducci 108, Tortoreto Lido, Tortoreto

Via Giosuè Carducci, 108, Tortoreto, Teramo

Prezzo
74
mq
3
Locali
2
Camere
2
Bagni

Recensisci questo Immobile

Devi essere registrato per lasciare una recensione.

Accedi

Nessuna recensione ancora. Sii il primo!

Descrizione

Il tuo nuovo appartamento nella località balneare più esclusiva della costa teramana – Tortoreto, zona CITYBEACH

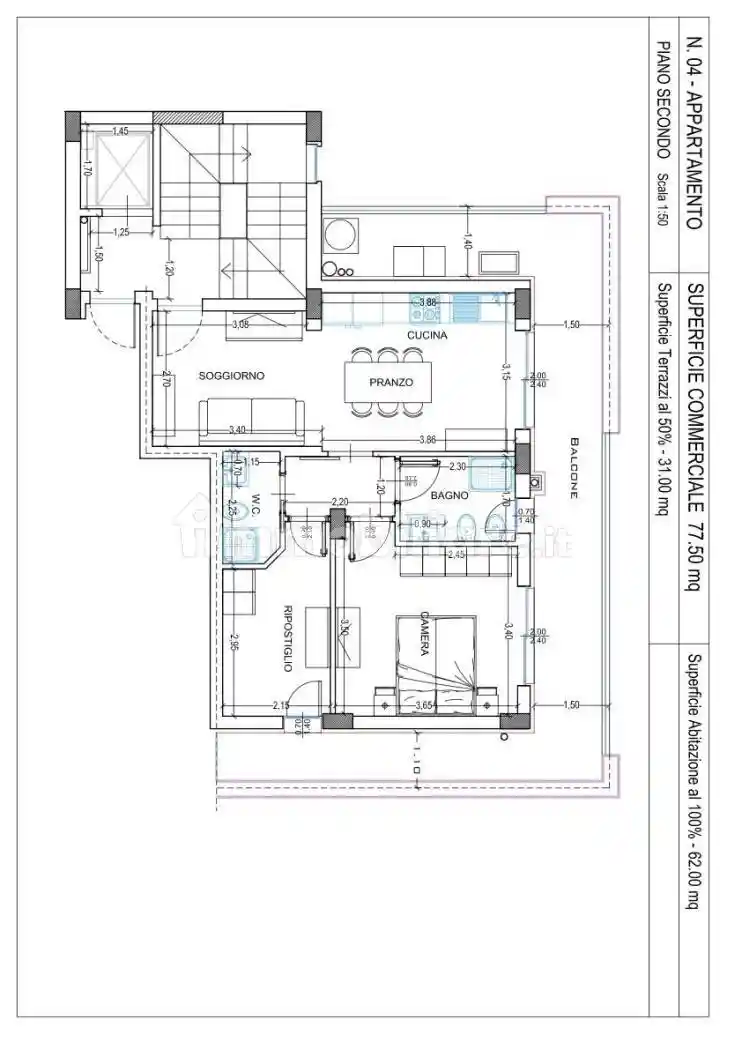
A soli pochi passi dal suggestivo lungomare Sirena, ti presentiamo un'opportunità unica: un appartamento moderno di 74 m² disponibile al primo, secondo o terzo piano di una nuova elegante palazzina. La consegna è garantita entro il 31 dicembre 2025 e potrai approfittare del sisma-bonus acquisti, con una detrazione fiscale fino a 48.000 euro.

La soluzione abitativa, in classe energetica A4, offre ambienti luminosi e ben distribuiti, anche su due livelli nell’attico. Composta da 3 locali, 2 bagni, terrazza e balcone, è perfetta per vivere in pieno relax ogni momento della giornata, magari ammirando spettacolari albe vista mare. Il riscaldamento è affidato a un’efficiente pompa di calore, ideale per il massimo comfort tutto l’anno.

L’edificio è servito da ascensore ed è progettato per garantire accessibilità anche alle persone con mobilità ridotta. Disponibile, su richiesta, un posto auto di proprietà coperto o scoperto.

Prezzi a partire da 288.000 euro. Non lasciarti sfuggire questa occasione: una casa nuova, elegante e funzionale, in una delle zone più ambite di Tortoreto.

Contattaci subito per ricevere ulteriori informazioni o per prenotare una visita!

Caratteristiche

Piano 1°, con ascensore
Ascensore Si

Servizi e accessori

Cancello elettrico Videocitofono Porta blindata Esposizione esterna Accesso per disabili Balcone Terrazzo Impianto tv con parabola satellitare Infissi esterni in doppio vetro / pvc

Posizione

Arianna Del Sordo

Agenzia

Referente

Arianna Del Sordo

Storico

Pubblicato 11 Jan 2026
Aggiornato 28 Feb 2026
Sul mercato 48 giorni
ID Annuncio 120392888