Vendita Villa

Villa unifamiliare via Madonna, Centro, Bovolenta

Via Madonna, Bovolenta, Padova

360.000 €
164
mq
5+
Locali
4
Camere
2
Bagni

Recensisci questo Immobile

Devi essere registrato per lasciare una recensione.

Accedi

Nessuna recensione ancora. Sii il primo!

Descrizione

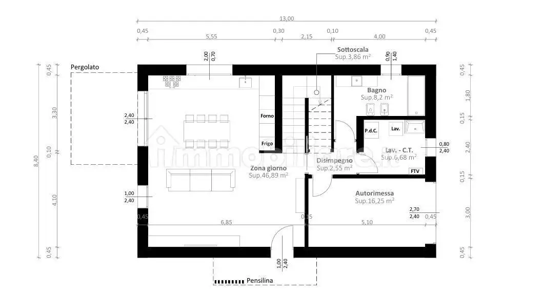
In zona residenziale tranquilla e immersa nel verde, nel comune di Bovolenta, proponiamo in vendita una casa singola di nuova costruzione, progettata con metra­ture generose e uno stile architettonico ricercato.

L’immobile si sviluppa su due livelli e offre la massima versatilità negli spazi e nelle finiture, per adattarsi perfettamente alle esigenze della tua famiglia.

Al piano terra:
Grande zona giorno open-space di circa 47 mq, un ambiente unico e luminoso con possibilità di separare la cucina
Bagno finestrato completo,e lavanderia con affaccio sull’ampio giardino verde
Accesso diretto al garage

Al primo piano:
Disposizione personalizzabile: l’acquirente potrà scegliere come suddividere gli ambienti
Possibilità di realizzare fino a 4 camere da letto (1 matrimoniale + 3 singole)
Ampio bagno e comodo ripostiglio

Un immobile su misura per te
Il vero punto di forza? La versatilità:

Scegli tu la distribuzione interna

Seleziona le finiture secondo il tuo gusto

Personalizza anche la dimensione del giardino

Il tutto a un prezzo chiavi in mano di €360.000, riferito all’immobile ultimato con finiture a scelta.
- Perché è una proposta da non perdere?
Nuova costruzione in contesto verde e riservato

Ampie metrature introvabili
Elevata personalizzazione
Ideale per famiglie che cercano comfort, qualità e indipendenza.

Vieni a scoprire questa opportunità unica: una casa nuova, bella e davvero tua.

Prezzo €: 360.000,00
Rif: BO-18
A.p.e.:In attesa dell'attestato di Prestazione energetica

Il presente annuncio potrebbe contenere degli errori. La descrizione dei locali potrebbe non essere conforme. Ogni condizione di vendita, metratura, specifica o altro riguardante l'immobile o le condizioni di vendita vengono concordate in fase di appuntamento e comunque prima di una eventuale proposta di acquisto

Caratteristiche

Piano Piano terra
Ascensore No
Stato Nuovo / In costruzione
Riscaldamento Autonomo
Garage 1 in box privato/box in garage, 1 in parcheggio/garage comune

Servizi e accessori

Cancello elettrico Fibra ottica Videocitofono Impianto di allarme Porta blindata Terrazzo Impianto tv con parabola satellitare Giardino privato Infissi esterni in triplo vetro / pvc Esposizione doppia

Posizione

Referente

L'Arte di Abitare Concessionario Immobiliare di Casalserugo

Storico

Pubblicato 26 Dec 2025
Aggiornato 26 Feb 2026
Sul mercato 62 giorni
ID Annuncio 120573144

Recensioni

Vedi tutte
F

Fiorella Moretti

5.0

Ricordo ancora il momento in cui ho deciso di acquistare casa dopo tanti anni di affitto, e devo dire che sono stata davvero fortunata a essere seguita da un’agenzia così onesta e trasparente. Mi hann...