Vendita Rustico - Casale

Rustico - Casale

Via chiaverotti, Montalto Dora, Torino

29.000 €
Buon Prezzo: 18% sotto la media
150
mq
5+
Locali
4
Camere
2
Bagni

Recensisci questo Immobile

Devi essere registrato per lasciare una recensione.

Accedi

Nessuna recensione ancora. Sii il primo!

Descrizione

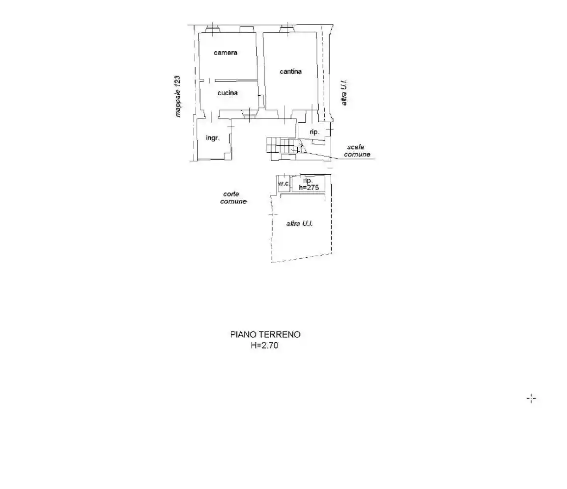
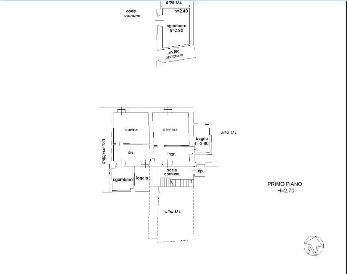
MONTALTO DORA: nel cuore del paese, proponiamo in vendita una casa di corte di 150 mq. Questa proprietà offre una soluzione versatile con due appartamenti distinti, perfetta per chi cerca un investimento immobiliare. La posizione centrale garantisce facile accesso a tutti i servizi del comune, rendendola una scelta pratica per residenti e affittuari. L'immobile necessita di ristrutturazione, offrendo l'opportunità di personalizzare gli spazi secondo le proprie esigenze e gusti. Un ulteriore vantaggio è l'assenza di spese condominiali, che consente di gestire la proprietà con maggiore libertà e controllo sui costi. Questa casa di corte rappresenta un'opportunità unica per chi desidera investire in una zona tranquilla ma ben collegata, con il potenziale di creare un ambiente abitativo su misura o di generare reddito attraverso l'affitto.

Caratteristiche

Piano 2° piano
Ascensore No
Stato Ottimo / Ristrutturato
Riscaldamento Autonomo

Servizi e accessori

Balcone Terrazzo

Posizione

Referente

Patrizio Pietroforte .

Storico

Pubblicato 02 Jan 2026
Aggiornato 25 Feb 2026
Sul mercato 56 giorni
ID Annuncio 120606162

Recensioni

Vedi tutte
T

Tullio Diamante

5.0

Quando ho deciso di trasferirmi a Montalto Dora, cercavo un’agenzia affidabile e seria, e questa si è subito distinta per la precisione nella documentazione e la professionalità. Sono stato seguito pa...

D

Diego Elia

4.7

Un ringraziamento spontaneo per l’efficienza e la professionalità dell’agenzia. Mi ha seguito in ogni fase, semplificando la gestione burocratica e aiutandomi molto anche con il mutuo. Sono stato davv...

C

Corrado Camerini

4.3

Ho trovato il bilocale perfetto grazie alla professionalità e competenza dell’agenzia. Sono stato seguito con attenzione durante tutta la trattativa, che si è rivelata rapida e senza stress. Consiglio...

L

Livio Ferrara

4.0

Ho trovato l’agenzia immobiliare davvero fantastica! Mi hanno seguito passo passo, dimostrando una conoscenza approfondita delle normative e garantendo una risposta rapida a tutte le mie esigenze. Gra...

S

Simone Capra

4.0

Ringrazio di cuore per la professionalità e l’attenzione dimostrata during tutta la fase di ricerca. Sono stato molto soddisfatto del supporto ricevuto, che mi ha aiutato a trovare l’appartamento perf...