Vendita Appartamento

Appartamento

Via Fanin, Sedriano, Milano

187.800 €
69
mq
2
Locali
1
Camere
1
Bagni

Recensisci questo Immobile

Devi essere registrato per lasciare una recensione.

Accedi

Nessuna recensione ancora. Sii il primo!

Descrizione

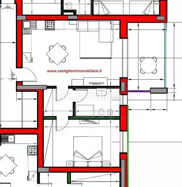
(Rif. RGV04E) Sedriano - Semicentrali, in Costruzione (Consegna Ottobre 2027), nelle due Palazzine E ed F, della Residenza Green Village 3° Lotto, proponiamo in Esclusiva, Bilocali di mq. 69,00 ca. composti da: Soggiorno con Cucina a Vista, Camera, Bagno, Terrazzino + Vano Cantina. Da Euro 187.800,00* (al Piano 1°), disponibile anche al Piano 2°, 3° e 4° ultimo piano (Edificio E) e al Piano 1°, 2°, 3° e 4° ultimo piano (Edificio F). Disponibile anche il Bilocale di mq. 66,00 ca., da Euro 179.800,00* (al 1° Piano), disponibile anche al Piano 2°, 3° e 4° ultimo piano (Edifici E ed F). Possibilità Box singolo o doppio, da Euro 23.000,00*. Pagamenti dilazionati personalizzati, Possibilità di Mutuo alla consegna, fino a massimo l'80%, alla firma del Preliminare di Compravendita Fideiussione Bancaria a Garanzia di tutti gli acconti versati e Polizza Assicurativa decennale sull'Edificio, rilasciata dal Costruttore. Classe Energetica A, Valore di Progetto EP gl, nren 30,23 kWh/m2anno. Le Palazzine saranno dotate delle più avanzate tecnologie strutturali e Impiantistiche, con pannelli a pavimento per il riscaldamento e il raffrescamento degli ambienti, alimentati con pompa di calore elettrica, dotati di contacalorie per ogni singola unità immobiliare (per la ripartizione dei consumi), Impianto di deumidificazione degli ambienti abbinato al raffrescamento, Cronotermostato per regolare la temperatura estate / inverno in ogni locale (ad esclusione dei bagni, ripostigli e disimpegni), Isolamento termico ed acustico di solai e pareti, Ampia scelta di capitolato per le finiture interne, Avvolgibili di tutti i serramenti con apertura motorizzata elettrica, Portoncino blindato, Porte bianche, Impianto fotovoltaico per la produzione di energia elettrica a servizio delle parti comuni e dell'impianto di riscaldamento / raffrescamento dell'Edificio, dimensionato come da norme vigenti, con moduli fotovoltaici sulla copertura della Palazzina, Predisposizione Impianto di allarme e Cassaforte. *Al Prezzo di Vendita va aggiunta l'IVA 4% (prima casa) o 10% (seconda casa). Allacciamenti, Urbanizzazioni e Accatastamento, già compresi nel Prezzo di Vendita.

Caratteristiche

Piano 1
Ascensore Si
Stato Nuovo / In costruzione
Riscaldamento Centralizzato, a pavimento, alimentato a pompa di calore

Servizi e accessori

Cancello elettrico Esposizione interna Impianto di allarme Impianto tv centralizzato Infissi esterni in doppio vetro / legno Porta blindata VideoCitofono

Posizione

Referente

CASTIGLIONI IMMOBILIARE di Castiglioni Andrea

Storico

Pubblicato 13 Jan 2026
Aggiornato 24 Feb 2026
Sul mercato 42 giorni
ID Annuncio 120671734

Recensioni

Vedi tutte
P

Paolo Salerno

4.7

Ho trovato il terreno perfetto per costruire grazie all’agenzia, sono stato davvero felice del risultato. Mi hanno seguito passo dopo passo, sempre disponibili e pronti a rispondere subito alle mie do...

D

Domenico Marino

4.7

Dopo aver avuto qualche esperienza non proprio organizzata, questa agenzia mi ha davvero sorpreso: tutto è stato curato nei minimi dettagli, come se fossi un amico di lunga data. Sono stato seguito co...

D

Diego Maresca

4.7

Stavo cercando un terreno a Magenta per costruire la mia casa e ho trovato l'agenzia molto professionale e competente. Mi hanno seguito passo dopo passo, gestendo con calma e sicurezza ogni fase della...

R

Renato Raimondi

4.3

Ho appena comprato la mia prima casa a Magenta e sono stato molto soddisfatto del percorso fatto. L’agenzia si è mostrata sempre onesta nelle valutazioni e molto cortese, aiutandomi a ogni passo. È st...

M

Matteo Romagnoli

4.0

Ho scelto questa agenzia perché mi ha colpito la loro serietà e professionalità fin dal primo incontro. Durante tutta la trattativa hanno gestito lo stress in modo molto tranquillo, rassicurandomi e f...