Vendita Villa

Villa bifamiliare via 24 Maggio 18, Centro, Dipignano

Via 24 Maggio, 18, Dipignano, Cosenza

Prezzo
Buon Prezzo: 20% sotto la media
500
mq
5+
Locali
6
Camere
3+
Bagni

Recensisci questo Immobile

Devi essere registrato per lasciare una recensione.

Accedi

Nessuna recensione ancora. Sii il primo!

Descrizione

Villa plurifamiliare nel centro del paese di Dipignano.
Piano tavernetta : uscita sul giardino,camino grande, 2 bagni, lavanderia, magazzino, soggiorno con angolo cucina arredato .
Piano rialzato: terrazzo con ingresso indipendente, ingresso,2 camere, bagno, ripostiglio, soggiorno con angolo cucina arredato.
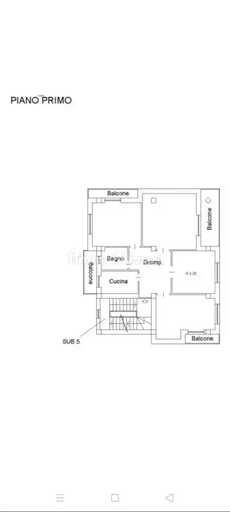
Piano primo: 4 camere, bagno, ingresso spazioso, cucina arredata, 3 balconi e un terrazzo.
Piano mansarda: open space.

Caratteristiche

Piano 4 piani: da Seminterrato a Piano terra, da 1° a 2°

Servizi e accessori

Cucina Balcone Terrazzo Parzialmente arredato Cantina Infissi esterni in doppio vetro / metallo

Posizione

Agenzia Immobiliare

Storico

Pubblicato 11 Jan 2026
Aggiornato 26 Feb 2026
Sul mercato 47 giorni
ID Annuncio 120822628