Indietro
Vendita Rustico - Casale

Rustico - Casale

Via Ripoira, 76, Barge, Cuneo

98.000 €
Ottimo Affare: 68% sotto la media
934
mq
5
Locali
4
Camere
2
Bagni

Recensisci questo Immobile

Devi essere registrato per lasciare una recensione.

Accedi

Nessuna recensione ancora. Sii il primo!

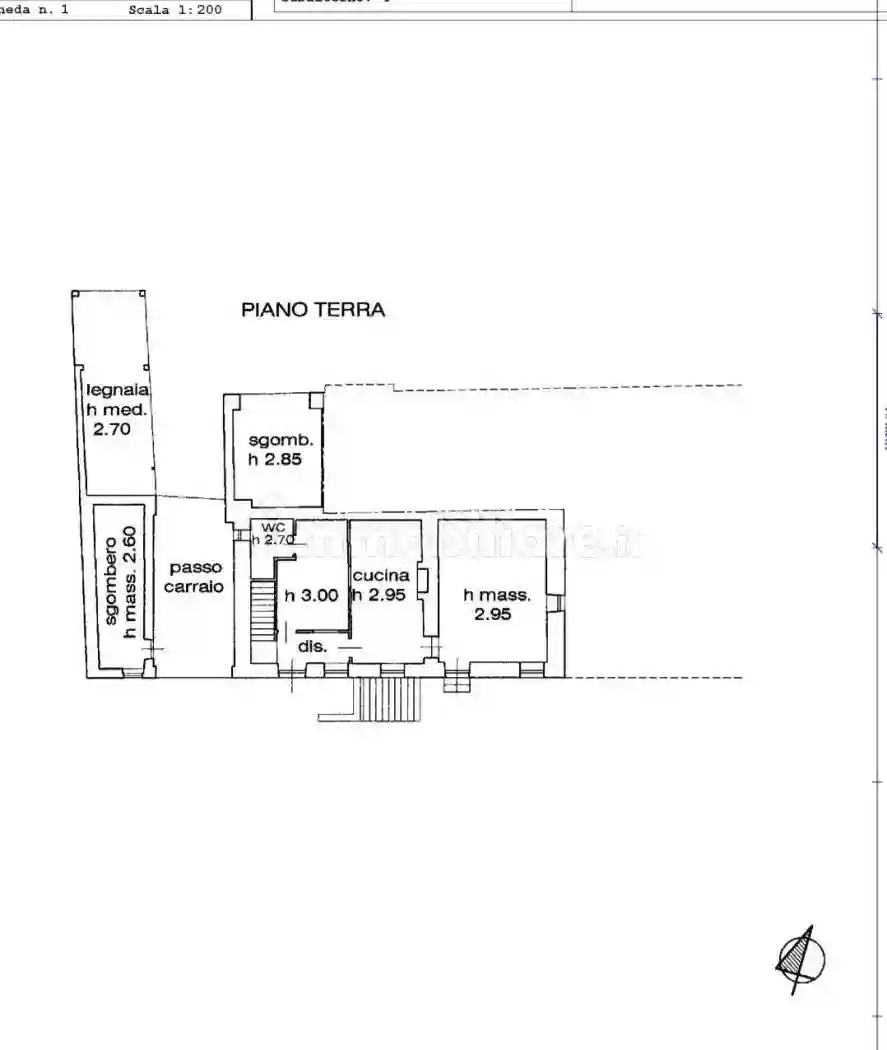
Descrizione

Vendo cascina situata ai piedi del monviso, Località Barge (cn) fraz Ripoira. Ex azienda agricola.
Zona tranquilla. Indipendente. Su 2 livelli.

Pterra
Camera con bagno
Cucina
Salotto con accesso al cortile

P1
3 camere (di cui 1 padronale con parquet)
1bagno
Balcone a cui si accede dalle 3 camere

Esterno
Stalla annessa si sviluppa in unico locale.
Ampia tettoia
Ampio garage chiuso
Ampia cantina

Ideale per chi necessita di ampio magazzino - rimessa o per agricoltori che necessitano di spazi per mezzi agricoli 271 m quadr
Tettoia per fienile o tettoia aperta 408 metri quadr
Riscaldamento autonomo con termocucina.

Caratteristiche

Ascensore No
Stato Da ristrutturare
Riscaldamento Autonomo

Servizi e accessori

Bagno per disabili Cucina Esposizione sud Infissi esterni in vetro / legno

Posizione

Agenzia Immobiliare

Storico

Pubblicato 13 Jan 2026
Aggiornato 23 Feb 2026
Sul mercato 42 giorni
ID Annuncio 121038492