Vendita Appartamento

Appartamento

Novellara, Reggio Emilia

230.000 €
100
mq
3
Locali
2
Camere
2
Bagni

Recensisci questo Immobile

Devi essere registrato per lasciare una recensione.

Accedi

Nessuna recensione ancora. Sii il primo!

Descrizione

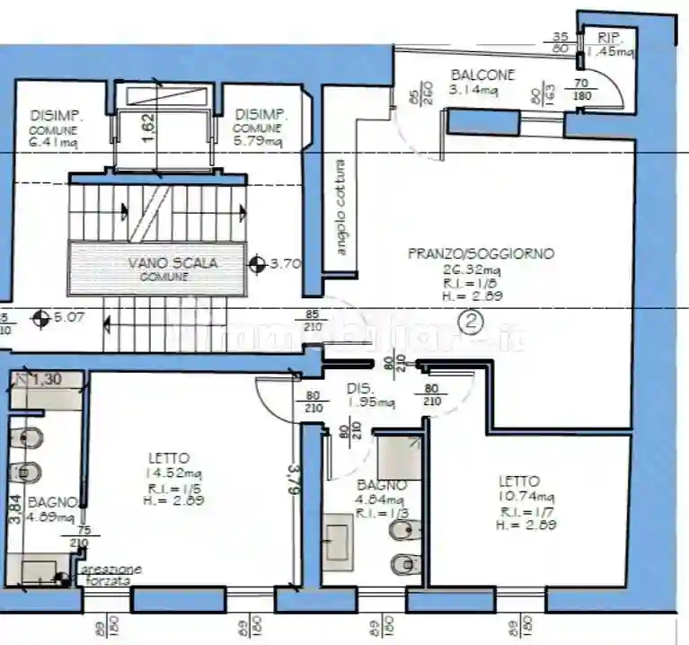
In posizione centralissima, in prestigiosa nuova ristrutturazione sulla Piazza di Novellara, splendido appartamento composto da salone con cucina open space e balcone, 2 camere, 2 bagni, ripostiglio e cantina. Finiture di pregio, ampie vetrate, soffitti alti rendono questo immobile un prestigioso investimento ma con tutti i confort di una nuova ristrutturazione tecnologica e a risparmio energetico.

Caratteristiche

Ascensore Si
Stato Nuovo / In costruzione
Riscaldamento Autonomo, alimentato a metano

Servizi e accessori

Infissi esterni in doppio vetro / legno

Posizione

Pianeta Casa

Agenzia

Referente

Pianeta Casa

Storico

Pubblicato 12 Jan 2026
Aggiornato 24 Feb 2026
Sul mercato 43 giorni
ID Annuncio 121062132