Vendita Appartamento

Appartamento

Novellara, Reggio Emilia

247.000 €
108
mq
3
Locali
2
Camere
2
Bagni

Recensisci questo Immobile

Devi essere registrato per lasciare una recensione.

Accedi

Nessuna recensione ancora. Sii il primo!

Descrizione

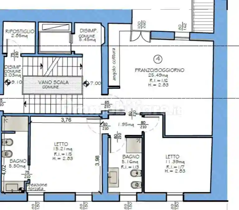
In pieno Centro Storico, in prestigioso palazzo di nuova ristrutturazione di sole 5 unità abitative con ascensore, appartamento al piano secondo, unico al piano, è composto da ampio salone con cucina open space, 2 camere da letto e 2 bagni, l'appartamento si completa con un solaio privato di 25 mq. La palazzina dispone di una comoda zona servizi al piano terra con deposito biciclette e cortile interno. Risparmio energetico e finiture di pregio caratterizzano questo nuovo intervento con affaccio sulla splendida Piazza di Novellara.

Caratteristiche

Ascensore Si
Stato Nuovo / In costruzione
Riscaldamento Autonomo, alimentato a metano

Servizi e accessori

Infissi esterni in doppio vetro / legno

Posizione

Pianeta Casa

Agenzia

Referente

Pianeta Casa

Storico

Pubblicato 12 Jan 2026
Aggiornato 24 Feb 2026
Sul mercato 43 giorni
ID Annuncio 121080004