Appartamento
Vendita
Vendita Appartamento

Appartamento

via Crocicchio dell'Oro, Campi Bisenzio, Firenze

295.000 €
80
mq
4
Locali
2
Camere
1
Bagni

Recensisci questo Immobile

Devi essere registrato per lasciare una recensione.

Accedi

Nessuna recensione ancora. Sii il primo!

Descrizione

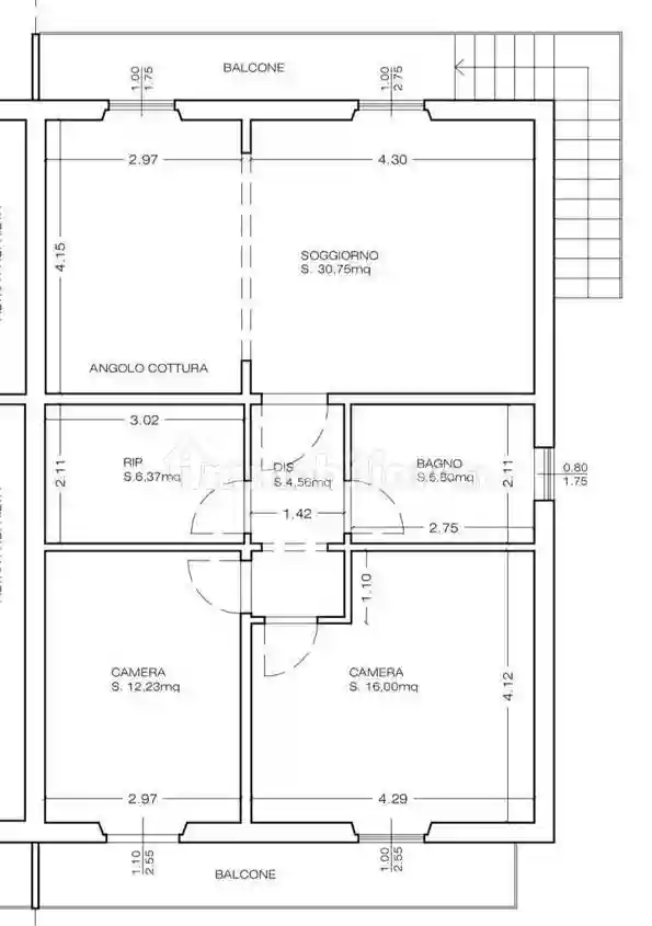
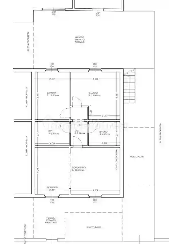
Campi Bisenzio, località Sant'Angelo a Lecore, vicino a farmacia, scuole e principali arterie di scorrimento, proponiamo in vendita delizioso APPARTAMENTO INDIPENDENTE di circa 80mq oltre spazi esterni, sito al PIANO TERRA di una terratetto BIFAMILIARE in fase di COMPLETA RISTRUTTURAZIONE, corredato di un DOPPIO RESEDE e di GARAGE privato. L'immobile, frutto del frazionamento di un più ampio fabbricato su due piani, si compone di entrata indipendente da resede anteriore di circa 20mq, una ampia zona giorno ad OPEN SPACE di doppia metratura con angolo cottura, disimpegno notte, servizio finestrato con doccia, ripostiglio e due camere da letto matrimoniali entrambe dotate di portafinestra per accedere al resede privato tergale di circa 80mq. Completa la proprietà un garage di 24mq situato dietro al suddetto resede. Possibilità di monetizzare un posto auto scoperto all'interno della proprietà. Ottime rifiniture, con opportunità di personalizzazione. Richiesti euro 295000. VENDESI. Classe Energetica: A

Caratteristiche

Piano T
Ascensore No
Stato Nuovo / In costruzione
Riscaldamento Autonomo

Posizione

Referente

Casabella Immobiliare

Storico

Pubblicato 14 Jan 2026
Aggiornato 18 Feb 2026
Sul mercato 38 giorni
ID Annuncio 121151522

Recensioni

Vedi tutte
L

Letizia Tosi

4.3

Ho scelto questa agenzia perché mi ha colpito la loro attenzione ai dettagli e la professionalità dimostrata fin dal primo contatto. Mi sono sentita seguita e aiutata in ogni fase, trovando un bilocal...

L

Liliana Franzese

4.7

Stavo cercando un appartamento con vista mare e l'agenzia mi è stata di grande aiuto. Sono stata seguita con cortesia e professionalità, e hanno sempre mantenuto valutazioni oneste e realistiche. Alla...