Indietro
Vendita Palazzo - Edificio

Palazzo - Edificio

Via Cantarena, 34A, Arenzano, Genova

280.000 €
Ottimo Affare: 83% sotto la media
500
mq
5+
Locali
1
Bagni

Recensisci questo Immobile

Devi essere registrato per lasciare una recensione.

Accedi

Nessuna recensione ancora. Sii il primo!

Descrizione

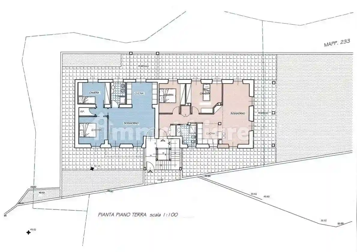
DESCRIZIONE GENERALE DELL’ INTERVENTO DI RISTRUTTURAZIONE A FINE ILLUSTRATIVO

Immobile denominato “Ex Cartiera”, sito nel Comune di Arenzano (GE), in via Cantarena, a circa 10 minuti a piedi dal centro e da tutti i servizi.

L’intervento in oggetto riguarda la ristrutturazione totale dell’edificio attualmente dismesso, il quale verrà completamente riqualificato al fine di restituirlo ad un nuovo utilizzo residenziale conforme alle previsioni urbanistiche vigenti.

Opportunità unica di costruire appartamenti nuovi, l’intervento comporta opere di carattere edilizio e impiantistico atte a garantire piena
funzionalità, accessibilità e conformità normativa delle nuove unità immobiliari.

L’ipotesi progettuale studiata prevede la riqualificazione complessiva dell’immobile mediante la realizzazione di n. 6 unità abitative ciascuna con spazi esterni e di un nuovo corpo vano scala dotato di ascensore a servizio di tutti i piani.

Inoltre saranno dotate di posti auto coperti, garantendo il rispetto degli standard minimi di parcheggio previsti per le nuove costruzioni e per i cambi di destinazione d’uso.

Le nuove unità immobiliari saranno realizzate nel rispetto dei più elevati standard di sostenibilità ambientale ed energetica conseguendo così una classe elevata e bassi consumi, conformemente alla nuova direttiva europea “case green”.

Abbiamo realizzato in collaborazione con un tecnico competente una stima di massima dell’importo complessivo dei lavori ed eventuali oneri; tale stima utile alla definizione del quadro economico generale della suddetta operazione immobiliare ha altresì rivelato margini di profitto convenienti.

Naturalmente questa proposta immobiliare è rivolta principalmente agli “addetti ai lavori”, imprese edili e/o studi di architettura, soggetti competenti e potenziali investitori.

Se interessati, contattateci!

Saremo lieti di ricevervi in agenzia per ulteriori informazioni e approfondimenti.

Caratteristiche

Piano T

Servizi e accessori

Esposizione doppia Infissi esterni in vetro / legno

Posizione

Referente

iad - Mario Vernazza

Storico

Pubblicato 12 Jan 2026
Aggiornato 24 Feb 2026
Sul mercato 43 giorni
ID Annuncio 121308838

Recensioni

Vedi tutte
S

Stefania Cavaliere

4.7

Ho appena acquistato la mia prima casa a Arenzano e sono davvero felice del risultato. L’agenzia è stata rapida e precisa nelle risposte, sempre disponibile a risolvere ogni mio dubbio. Mi sono sentit...

N

Nadia Cavalli

4.3

Ricordo ancora il momento in cui ho trovato la mia seconda casa al mare, un sogno diventato realtà grazie alla loro incredibile attenzione e professionalità. Sono stata seguita con tanta pazienza e di...