Indietro
Palazzo - Edificio
Vendita
Vendita Palazzo - Edificio

Palazzo - Edificio

Capannori, Capannori, Lucca

620.000 €
Ottimo Affare: 65% sotto la media
780
mq
5+
Locali
3+
Bagni

Recensisci questo Immobile

Devi essere registrato per lasciare una recensione.

Accedi

Nessuna recensione ancora. Sii il primo!

Descrizione

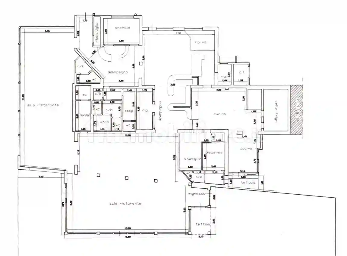
Vendesi Ristorante / pizzeria nel Comune di Capannori per una superfice di 620mq perfettamente funzionante e competo di licenze e completamente arredato corredato da affittacamere per un totale di 5 camere con bagno ampliabili di altre 5 riducendo il ristorante.
Attualmente ci sono 100 comodi posti seduti internamente oltre alle verande esterne per le cene estive e un grande giardino di 170 mq. r ampio parcheggio.
Per informazioni chiamare 0583920443 e fissare un appuntamento in agenzia.

Caratteristiche

Ascensore No

Servizi e accessori

Accesso per disabili Caminetto

Posizione

Zona: Centro (Centro, Tassignano, Paganico)

Referente

Sist3ma immobiliare s.n.c.

Storico

Pubblicato 14 Jan 2026
Aggiornato 19 Feb 2026
Sul mercato 36 giorni
ID Annuncio 121421942

Recensioni

Vedi tutte
A

Aldo Magnani

5.0

Quando ho visto la cura con cui mi hanno seguito fin dai primi incontri, ho capito subito che potevo fidarmi. La loro competenza nella trattativa e la chiarezza nel spiegare ogni dettaglio mi hanno fa...

F

Francesco Armani

4.7

Ho scelto questa agenzia perché mi hanno colpito la loro flessibilità negli orari e l’attenzione ai dettagli. Sono stato molto soddisfatto del supporto e della professionalità con cui mi hanno seguito...

R

Rocco Fumagalli

4.7

Ho trovato l’appartamento perfetto per i miei figli grazie a questa agenzia, che mi ha seguito passo dopo passo con grande professionalità. Sono stato colpito dalla loro precisione nella gestione dell...

R

Raffaele Palumbo

5.0

Durante tutto il processo mi sono sentito tranquillo, grazie all’attenzione attenta alle mie esigenze. Ho trovato facilmente il magazzino perfetto per la mia azienda, seguendo con pazienza e professio...

R

Roberto Sacco

4.3

Ho trovato l'agenzia davvero affidabile, mi ha seguito passo dopo passo con molta professionalità. La documentazione era sempre precisa e in ordine, il che mi ha dato molta tranquillità. Ora vivo in u...