Vendita Appartamento

Bilocale nuovo, primo piano, Lanciano

Lanciano, Chieti

125.000 €
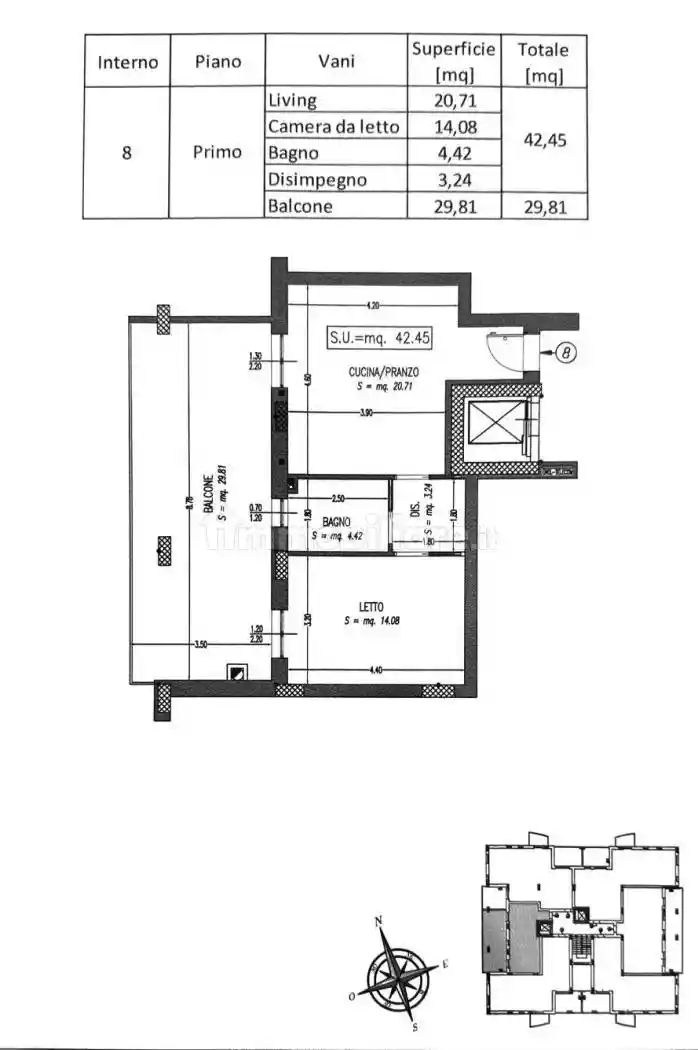
56
mq
2
Locali
1
Camere
1
Bagni

Recensisci questo Immobile

Devi essere registrato per lasciare una recensione.

Accedi

Nessuna recensione ancora. Sii il primo!

Descrizione

LANCIANO, in zona residenziale ricca di scuole e servizi, a 5 minuti dal centro città, e fortemente richiesta, proponiamo in vendita palazzina in corso di costruzione, suddivisa in 38 appartamenti di varie metrature, 34 garage, distribuiti su 6 piani e con due ascensori.

Ogni appartamento con 1, 2 o 3 camere da letto sarà dotato di:

o Impianto fotovoltaico con batterie d'accumulo per generare in autonomia energia pulita.
o Impianto di climatizzazione a pompa di calore con Fan Coil per riscaldamento e raffrescamento.
o Impianto videocitofonico ad alta definizione.
o Infissi in PVC a taglio termico che garantiranno il massimo isolamento termico.
o Tapparelle motorizzate

Prezzi a partire da 125.000€ per il taglio da 56 mq - 1 camera da letto
Prezzi a partire da 180.000€ per il taglio da 82mq - 2 camere da letto
Prezzi a partire da 270.000€ per il taglio da 122mq - 3 camere da letto
* tutti i prezzi sono da intendersi più iva come per legge.

Il Complesso residenziale è circondato da un parco verde e tanti parcheggi liberi, e altre palazzine già terminate e tutte abitate.

Per ogni informazione aggiuntiva vi aspettiamo senza impegno nel nostro ufficio a Lanciano in Corso Bandiera 83.

Oppure scriveteci una mail all'indirizzo lanciano@casamercato.info

Caratteristiche

Piano 1°, con ascensore
Ascensore Si
Garage 1 in box privato/box in garage, 2 in parcheggio/garage comune

Servizi e accessori

Fibra ottica Videocitofono Esposizione esterna Accesso per disabili Balcone Giardino comune Infissi esterni in triplo vetro / pvc

CRISTINA CORRADO

Agenzia

Referente

CRISTINA CORRADO

Storico

Pubblicato 11 Jan 2026
Aggiornato 24 Feb 2026
Sul mercato 46 giorni
ID Annuncio 121441278