Vendita Appartamento

Appartamento

Via Angelo Roth, 9, Alghero, Sassari

315.000 €
77
mq
3
Locali
2
Camere
2
Bagni

Recensisci questo Immobile

Devi essere registrato per lasciare una recensione.

Accedi

Nessuna recensione ancora. Sii il primo!

Descrizione

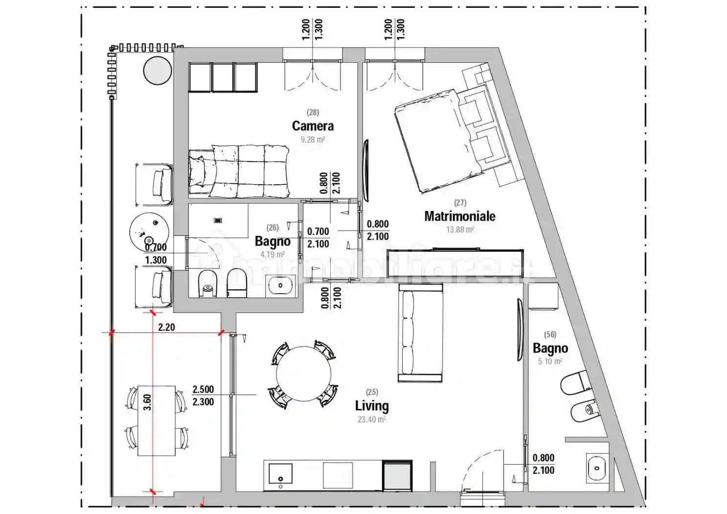
Comodo trilocale composto da zona living con bagno e ampia terrazza abitabile, camera matrimoniale, cameretta e bagno.
Nel cuore di Alghero, in Via Roth 9, nasce un nuovo progetto abitativo che unisce la tranquillità della zona alla comodità di avere tutto a portata di mano. A soli 370 metri dal centro storico e 450 metri dal mare, questa nuova costruzione rappresenta la soluzione ideale per chi desidera vivere in un contesto silenzioso ma ben collegato, senza rinunciare alla vivacità e alle bellezze della città. Situata in un’area residenziale strategica, centrale e ben servita, la palazzina si inserisce armoniosamente nel tessuto urbano, offrendo un equilibrio perfetto tra riservatezza e accessibilità. Che si tratti di una passeggiata tra i vicoli storici o di un tuffo nelle acque cristalline del litorale algherese, tutto è raggiungibile in pochi minuti a piedi o in bicicletta. La vicinanza a negozi, scuole, servizi pubblici e spazi verdi rende la quotidianità semplice e piacevole, in un ambiente dove qualità della vita e praticità vanno di pari passo.
La qualità costruttiva è uno dei punti di forza di questo progetto. Ogni appartamento è realizzato con materiali di altissimo livello e finiture contemporanee, pensate per offrire un ambiente accogliente, elegante e funzionale.
Grande attenzione è stata dedicata al comfort interno, sia dal punto di vista termico che acustico. Grazie all'impiego delle migliori tecniche costruttive, ogni appartamento si trasforma in un rifugio silenzioso e protetto, dove i rumori esterni restano fuori e la quiete accompagna ogni momento della giornata. Le elevate prestazioni dell'involucro edilizio garantiscono inoltre un clima interno sempre ottimale, fresco d'estate e caldo d'inverno, riducendo al minimo la necessità di interventi meccanici. Un'ottima efficienza energetica, che si traduce in un risparmio concreto sui consumi e in uno stile di vita più sostenibile e consapevole.
La stessa cura si ritrova nella qualità degli ambienti interni, progettati per offrire spazi luminosi, ben distribuiti e rifiniti con materiali pregiati. Ogni dettaglio, dalle pavimentazioni alle porte interne, dai rivestimenti ai serramenti, è stato selezionato per garantire eleganza, durabilità e comfort. Un equilibrio perfetto tra estetica e funzionalità, che rende ogni abitazione unica, accogliente e pronta da vivere.
A rendere ogni unità abitativa ancora più speciale, il sistema domotico che ti permette di avere il pieno controllo della tua casa con un semplice tocco. Potrai regolare (anche da remoto) luci, temperatura e sistemi di sicurezza, per una gestione intelligente e ottimizzata degli spazi, migliorando il comfort quotidiano.
Ogni appartamento è dotato di un impianto fotovoltaico indipendente che ti permette di ridurre in modo significativo i costi energetici, rendendo la tua casa più sostenibile e meno impattante sull'ambiente. Gli spazi esterni sono concepiti per valorizzare la luce naturale e offrire un prolungamento dell'abitare verso l'aria aperta. I terrazzi ampi e vivibili diventano veri e propri salotti all'aperto, ideali per godere del clima mite di Alghero in ogni stagione.
Sono inoltre disponibili posti auto e box auto, per completare una proposta abitativa moderna, efficiente e perfettamente integrata nel tessuto urbano.
Questa nuova costruzione rappresenta un'opportunità unica per chi cerca una scelta di valore, oggi e per il futuro.

Caratteristiche

Piano 4
Stato Nuovo / In costruzione
Riscaldamento Autonomo, ad aria, alimentato a pompa di calore

Servizi e accessori

Cancello elettrico Fibra ottica Porta blindata VideoCitofono

Posizione

Referente

C.G. AEDIFICIUM

Storico

Pubblicato 14 Jan 2026
Aggiornato 23 Feb 2026
Sul mercato 41 giorni
ID Annuncio 121449842

Recensioni

Vedi tutte
N

Nicola Vitale

5.0

Durante il processo di acquisto della mia seconda casa al mare, mi sono sentito tranquillo e ben supportato grazie alla tempestività delle risposte e alla professionalità dimostrata. Ho trovato nello...

O

Oscar Raffaele

5.0

La rapidità con cui sono stato seguito è stata davvero impressionante, hanno capito subito le mie esigenze e mi hanno aiutato a trovare il terreno perfetto. La loro affidabilità si nota nel modo trasp...

G

Gianni Baroni

4.7

Ho avuto un’esperienza fantastica con questa agenzia immobiliare a Sassari! Sono stato molto soddisfatto del loro supporto costante e della disponibilità dimostrata durante tutto il processo di vendit...

U

Ugo Lanzoni

4.3

Ho trovato la casa perfetta a Sassari, proprio come desideravo per vivere dopo la pensione, in una zona tranquilla e accogliente. L’agenzia è stato un supporto fantastico, mi ha seguito passo passo e...

G

Gianmarco Ventura

4.3

Ricordo ancora quel momento in cui ho trovato finalmente l’appartamento perfetto per la mia famiglia in crescita, grazie alla loro disponibilità e professionalità. Sono stato colpito dalla flessibilit...