Appartamento
Vendita
Vendita Appartamento

Appartamento

San Mauro Pascoli, Forli Cesena

275.000 €
95
mq
3
Locali

Recensisci questo Immobile

Devi essere registrato per lasciare una recensione.

Accedi

Nessuna recensione ancora. Sii il primo!

Descrizione

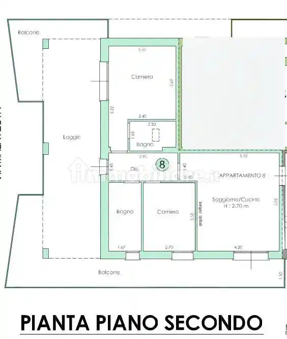
NUOVA COSTRUZIONE A SAN MAURO PASCOLI IN POSIZIONE STRATEGICA - PRONTA CONSEGNA

In una delle zone più fortunate e comode della città, proponiamo splendidi appartamenti in palazzina signorile fronte ad un meraviglioso parco alberato e attrezzato, ideale per il relax e il tempo libero.

Gli appartamenti si distinguono per l'alta qualità costruttiva e l'efficienza energetica, con CLASSE ENERGETICA A, finiture di pregio e massima attenzione al comfort abitativo.

Caratteristiche principali:
✔️ Ampie metrature
✔️ Due camere da letto
✔️ Due bagni finestrati
✔️ Garage e posto auto al piano terra
✔️ Ascensore
✔️ Luminosità eccezionale e spazi ben distribuiti

Disponibilità:

Primo piano da 275.000 €

Attico secondo piano da 330.000 €

Un'occasione unica per vivere nel verde senza rinunciare alla comodità dei servizi. Contattaci per informazioni o per fissare una visita!

Per informazioni 338 352 3961 oppure 0541 626435

Caratteristiche

Ascensore No

Posizione

Referente

A Immobiliare S.R.L.S.

Storico

Pubblicato 12 Jan 2026
Aggiornato 18 Feb 2026
Sul mercato 39 giorni
ID Annuncio 121618050

Recensioni

Vedi tutte
K

Katia Laino

4.7

Durante il processo mi sono sentita molto supportata e presa per mano, grazie alla serietà e alla cortesia dell’agenzia. Mi sono trovata subito a mio agio e hanno seguito ogni passo con professionalit...