Vendita Appartamento

Appartamento

via venezia, 120, Schio, Vicenza

207.500 €
97
mq
3
Locali
2
Camere
2
Bagni

Recensisci questo Immobile

Devi essere registrato per lasciare una recensione.

Accedi

Nessuna recensione ancora. Sii il primo!

Descrizione

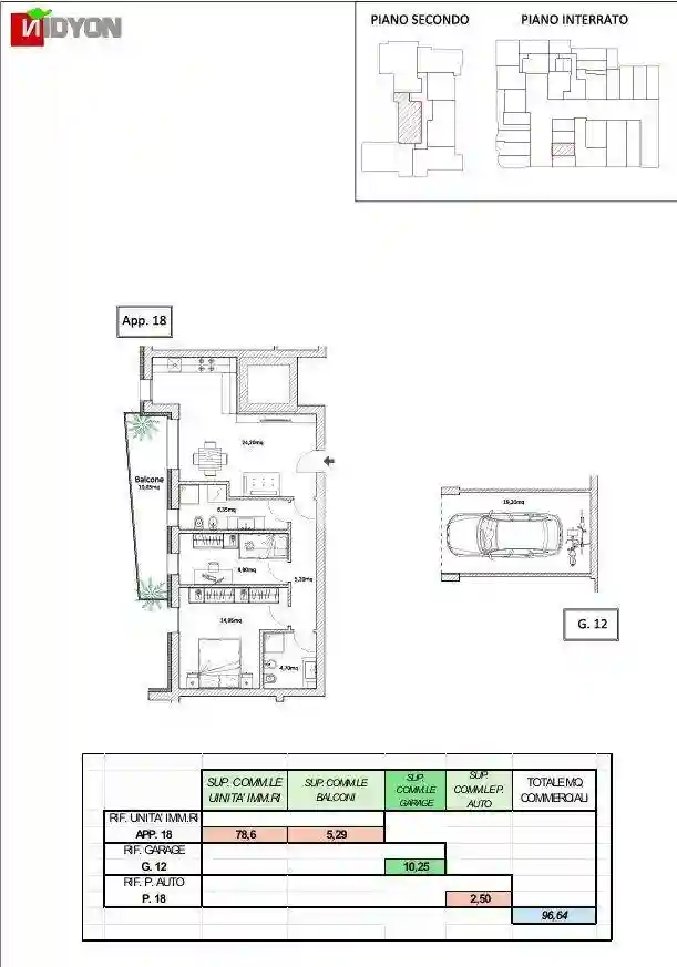
APPARTAMENTO A18 – Trilocale al Secondo Piano con Balcone

Comodo e ben distribuito trilocale al secondo piano, servito da ascensore, con balcone di 10 mq ideale per momenti all’aperto.

L’appartamento è composto da zona giorno luminosa, due camere da letto, doppi servizi (di cui uno cieco), disimpegno e spazi ottimizzati.
Inclusi nella proprietà un garage singolo e un posto auto scoperto privato.

Classe energetica prevista A, riscaldamento a pavimento, finiture di qualità a scelta da capitolato.
In posizione servita e riservata, a pochi minuti dal centro storico di Schio.

Caratteristiche

Piano 2
Ascensore Si
Stato Nuovo / In costruzione
Riscaldamento Centralizzato, a pavimento, alimentato a metano

Servizi e accessori

VideoCitofono

Posizione

Referente

Affiliato Tecnocasa: Studio Schio srl

Storico

Pubblicato 15 Jan 2026
Aggiornato 24 Feb 2026
Sul mercato 40 giorni
ID Annuncio 121638462

Recensioni

Vedi tutte
S

Silvia Nardone

5.0

Ho scelto questa agenzia perché cercavo un aiuto affidabile e competente per ristrutturare il mio nuovo centro tranquillo a Piovene Rocchette. Mi sono trovata subito bene grazie alla loro grande dispo...