Vendita Appartamento

Appartamento

Perugia, Perugia

130.000 €
Buon Prezzo: 21% sotto la media
142
mq
5
Locali
3
Camere
2
Bagni

Recensisci questo Immobile

Devi essere registrato per lasciare una recensione.

Accedi

Nessuna recensione ancora. Sii il primo!

Descrizione

Frimm Sinergie Immobiliare propone in vendita un appartamento situato nel cuore del quartiere di Ferro di Cavallo a Perugia, in un palazzo con ascensore che garantisce comfort e accessibilità.

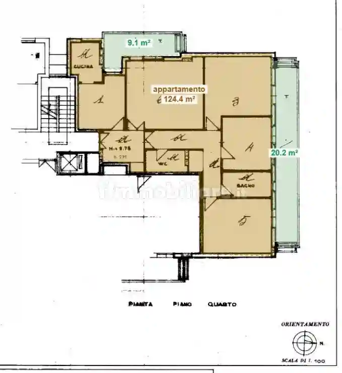
Caratteristiche: Appartamento di ampia metratura, abitabile, composto di ingresso, cucina con caminetto, soggiorno, tre camere da letto, due bagni di cui uno con finestra. Due ampi terrazzi panoramici, completa la proprietà un garage al primo piano sotto strada.
Ottimo palazzo, contesto molto tranquillo con la possibilità di crearsi l'appartamento desiderato.

Attualmente occupato da inquilino, libero dal 01/04/2026

Zona:

- Il quartiere Ferro di Cavallo è una zona molto servita, con facile accesso a negozi, ristoranti, servizi e super strada.
- La posizione è ideale per chi cerca una vita tranquilla e confortevole.

Se sei interessato a questo appartamento o vuoi saperne di più, non esitare a contattarci. Saremo felici di fornirti ulteriori informazioni e di organizzare un sopralluogo.

per info 339*7545669 .

Caratteristiche

Piano 4
Ascensore Si
Stato Da ristrutturare
Riscaldamento Centralizzato, a radiatori, alimentato a metano

Servizi e accessori

Armadio a muro Caminetto Esposizione esterna Fibra ottica Impianto tv centralizzato Infissi esterni in vetro / legno Porta blindata VideoCitofono

Posizione

Zona: Ferro di Cavallo (Santa Lucia, Ferro di Cavallo, Olmo, Città della Domenica, Monte Malbe)

SINERGIE Immobiliare

Agenzia

Referente

SINERGIE Immobiliare

Storico

Pubblicato 14 Jan 2026
Aggiornato 26 Feb 2026
Sul mercato 42 giorni
ID Annuncio 121785072