Vendita Villa Luxury

Villa

Luni, La Spezia

320.000 €
100
mq
4
Locali
2
Camere
2
Bagni

Recensisci questo Immobile

Devi essere registrato per lasciare una recensione.

Accedi

Nessuna recensione ancora. Sii il primo!

Descrizione

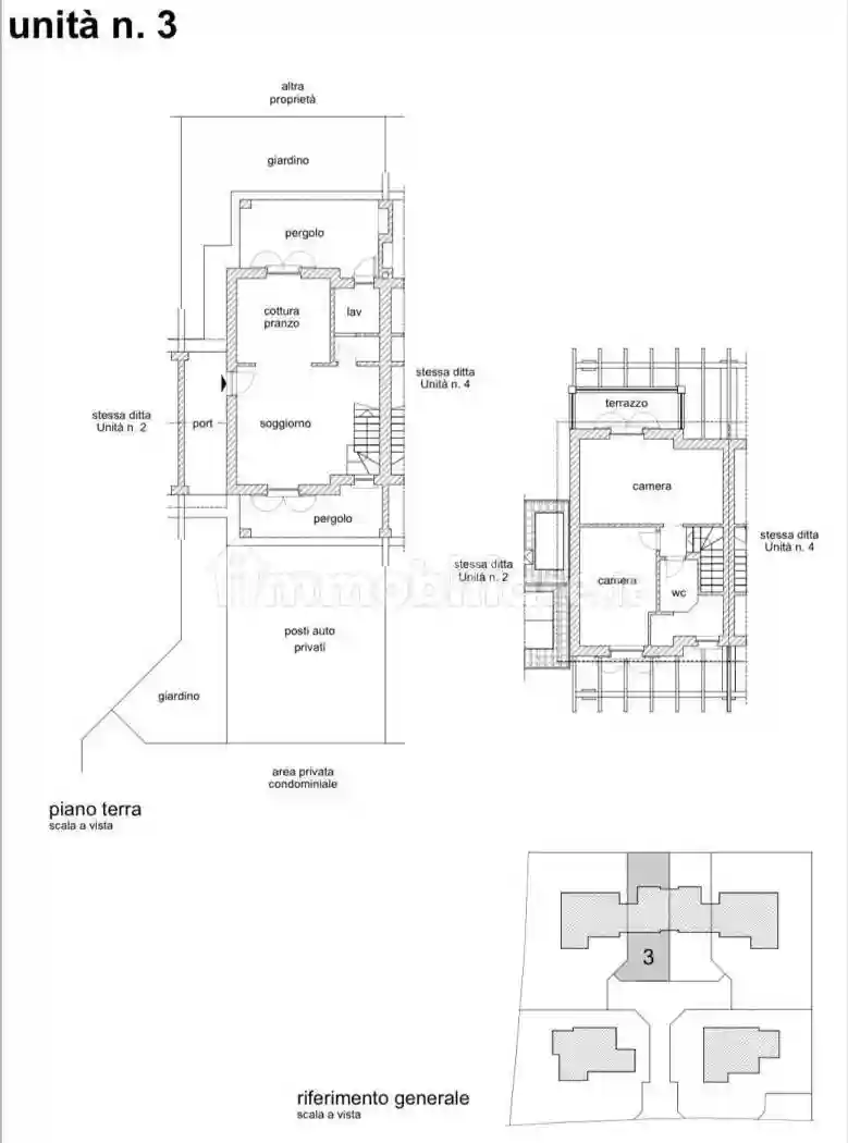
Rif LU69 - ZONA DOGANA - Proponiamo in posizione strategica, poco distante dal mare e dai servizi, nuova costruzione con il massimo comfort di ultima generazione come pompe di calore, isolamento termico e pannelli solari.
L'immobile è suddiviso su due livelli, al piano terra troviamo una luminosa zona giorno con angolo cottura, da cui si può accedere direttamente al giardino ed una zona lavanderia. Al piano superiore troviamo la zona notte composta da due camere da letto e servizi.
A completare la proprietà due posti auto.
Possibilità di personalizzazione.
PER INFO E/O APPUNTAMENTI CONTATTARE IMMOBILIARE BERTONELLI 375 5711599 Classe Energetica: A+ EPI: 180,00 kwh/m2 anno

Caratteristiche

Piano T
Ascensore No
Stato Nuovo / In costruzione
Riscaldamento Autonomo

Referente

Bertonelli Immobiliare

Storico

Pubblicato 12 Jan 2026
Aggiornato 25 Feb 2026
Sul mercato 44 giorni
ID Annuncio 121804474

Recensioni

Vedi tutte
L

Loris Magrini

5.0

Grazie di cuore per l’aiuto in questa ricerca, sono stato molto soddisfatto. L’agenzia ha dimostrato grande pazienza e flessibilità negli orari, adattandosi alle mie esigenze e rendendo tutto molto pi...

L

Luca Castagna

4.7

Stavo cercando un appartamento con vista mare a Sarzana e sono stato molto soddisfatto del supporto ricevuto. L’agenzia è stata sempre tempestiva nelle risposte e molto attenta alle mie esigenze, aiut...

E

Emanuele Angelini

4.3

Stavo cercando un'agenzia affidabile che mi aiutasse a vendere il mio locale commerciale a Sarzana e sono davvero felice di averla trovata. Il team ha dimostrato una conoscenza approfondita delle norm...