Appartamento
Vendita
Vendita Appartamento

Appartamento

Via Ponti Rotti, Pontecagnano Faiano, Salerno

250.000 €
100
mq
4
Locali
3
Camere
2
Bagni

Recensisci questo Immobile

Devi essere registrato per lasciare una recensione.

Accedi

Nessuna recensione ancora. Sii il primo!

Descrizione

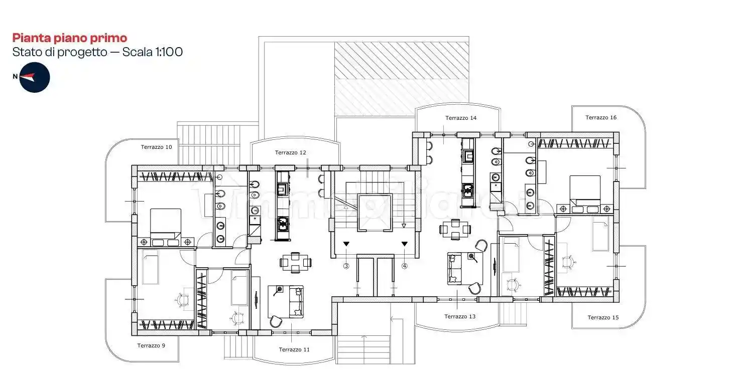
Pontecagnano Via Ponti Rotti nei pressi del Maximall

Elegante appartamento di nuova costruzione, progettato per offrire comfort, funzionalità e uno stile di vita moderno. Con una superficie di 100 mq, l’immobile è perfettamente distribuito per soddisfare le esigenze di una famiglia o di chi desidera spazi ben organizzati e luminosi.
- Cucina abitabile: moderna e spaziosa, con accesso diretto al balcone,
- Salone ampio: zona living accogliente e luminosa
- Tre camere da letto;
- Due bagni;
- Ripostiglio;
- Balconi: presenti su più lati dell’appartamento, offrono sfoghi esterni vivibili e una piacevole vista.
- Box auto privato: incluso nella proprietà,
Consegna marzo 2026
Per ulteriori informazioni potete contattarci al 347 256 0186

Caratteristiche

Piano 1
Ascensore Si
Stato Nuovo / In costruzione
Riscaldamento Autonomo, a radiatori, alimentato a pompa di calore

Servizi e accessori

Cancello elettrico Esposizione esterna Infissi esterni in doppio vetro / PVC Porta blindata VideoCitofono

Posizione

Referente

Affiliato Frimm Pontecagnano

Storico

Pubblicato 12 Jan 2026
Aggiornato 18 Feb 2026
Sul mercato 39 giorni
ID Annuncio 121821950

Recensioni

Vedi tutte
T

Teresa Milanesi

4.3

Dopo aver avuto brutte esperienze con altre agenzie, questa volta mi sono trovata davvero bene. Sono stata seguita con grande pazienza e puntualità, e alla fine ho trovato il bilocale perfetto per me...

M

Marilena Lucchese

5.0

Durante il processo mi sono sentita davvero tranquilla, come se avessi una vera esperta al mio fianco. La conoscenza approfondita delle normative e del mercato locale mi ha fatto sentire sicura nelle...

I

Ilaria Maffeis

4.0

Ricordo ancora quando ho trovato la casa perfetta per stare più vicina ai miei genitori anziani, un momento davvero speciale. Mi sono sentita subito seguita e supportata da un’agenzia che conosce bene...

G

Gabriella Marchesini

5.0

Ti confesso che ho scelto questa agenzia perché mi hanno colpito la loro disponibilità e la flessibilità negli orari, soprattutto considerando i miei impegni vari. Dopo anni di affitto, ho deciso di c...