Vendita Appartamento

Appartamento

Via Monte Coco, 35, Mondolfo, Pesaro Urbino

155.000 €
Ottimo Affare: 27% sotto la media
160
mq
5+
Locali
3
Camere
3
Bagni

Recensisci questo Immobile

Devi essere registrato per lasciare una recensione.

Accedi

Nessuna recensione ancora. Sii il primo!

Descrizione

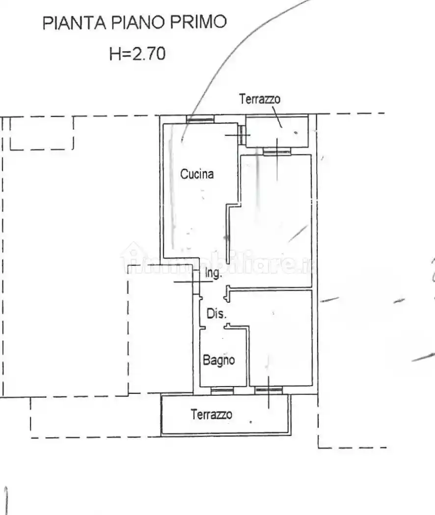
Mondolfo Scopri questo splendido appartamento situato al secondo ed ultimo piano, che offre una posizione panoramica con vista mare e colline. Con una metratura ampia questo immobile è perfetto per chi cerca spazio e comfort. La sala, dotata di un camino, si apre su una terrazza dove poter godere di momenti di relax all'aria aperta. La cucina abitabile è grande e luminosa, anch'essa con accesso a una terrazza.

L'appartamento dispone di tre camere da letto, di cui due matrimoniali, e tre bagni, garantendo così il massimo della comodità per tutti gli abitanti. Al piano superiore, una mansarda offre un'ampia zona giorno con camino e un bagno, perfetta per creare uno spazio privato/studio o un'area giochi. Non dimenticare l’ampio garage al piano terra, capace di ospitare un'auto e vari accessori, moto, bici, ecc, il giardino/orto ad uso privato, dove potrai coltivare le tue piante preferite.

Costruito nel 1985 e mantenuto in buono stato, l'immobile è dotato di riscaldamento a metano. Con orientamento su tutti i lati (Nord, Sud, Est, Ovest), questo appartamento è la scelta ideale per chi cerca una residenza confortevole e ben collegata. Non perdere l'occasione di visitarlo! €. 155.000

Caratteristiche

Piano 2
Stato Buono / Abitabile
Riscaldamento Autonomo, a radiatori, alimentato a metano

Posizione

Referente

Agenzia Immobiliare Sedi di Serfilippi Laura

Storico

Pubblicato 13 Jan 2026
Aggiornato 23 Feb 2026
Sul mercato 42 giorni
ID Annuncio 121823542

Recensioni

Vedi tutte
D

Donatella Basile

4.7

Grazie di cuore, sono stata davvero felice con l'aiuto di questa agenzia. Mi hanno trovata sempre attenta alle mie esigenze e hanno accompagnato con molta pazienza durante tutte le visite, rendendo il...

V

Valeria D'Amico

4.7

La vasta scelta di immobili disponibili e la conoscenza approfondita delle normative locali mi hanno spinta a rivolgermi a questa agenzia. Mi sono sentita seguita con attenzione e professionalità, tro...

S

Sandra Inserra

4.7

Ho trovato un appartamento più grande perfetto per la mia famiglia grazie all'agenzia, che si è dimostrata molto cortese e attenta alle mie esigenze. La mia esperienza è stata positiva: sono stata seg...

C

Chiara Crescenzi

4.7

All'inizio ero un po’ansiosa, ma subito ho trovato un’assistenza fantastica che mi ha messa a mio agio. Sono stata molto soddisfatta della loro efficienza nella gestione di tutta la burocrazia e della...

V

Valentina Fusco

4.7

Una delle cose che mi ha colpito di più è stata l’attenzione ai dettagli durante tutto il processo, dalla prima visita alla consegna delle chiavi. Mi sono sentita seguita con molta cura e sincerità, s...