Appartamento
Vendita
Vendita Appartamento

Appartamento

Via Gibellini, 25, Pecetto Torinese, Torino

170.000 €
Ottimo Affare: 46% sotto la media
170
mq
5
Locali
3
Camere
3
Bagni

Recensisci questo Immobile

Devi essere registrato per lasciare una recensione.

Accedi

Nessuna recensione ancora. Sii il primo!

Descrizione

In Vendita – Nuovi Appartamenti in Costruzione nel Cuore di Pecetto Torinese
Nel concentrico di Pecetto Torinese, in una posizione comoda a tutti i servizi, presentiamo in esclusiva un nuovo intervento residenziale in fase di edificazione. Un progetto moderno, curato nei dettagli e pensato per offrire comfort, efficienza energetica e la possibilità di personalizzare gli ambienti secondo il proprio stile.
La proposta comprende tre tipologie abitative, perfette per famiglie, giovani coppie o come investimento di qualità.

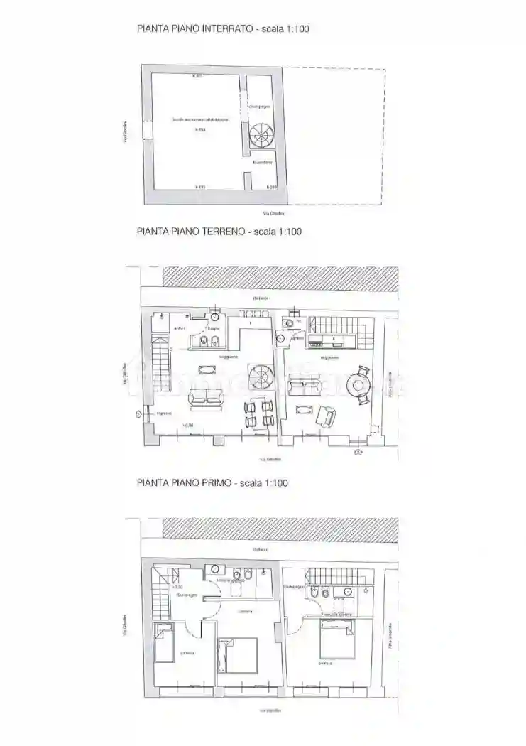
Soluzione 1 – Bilivello Moderno
Un appartamento giovane e funzionale, sviluppato su due livelli, ideale come prima casa o come soluzione smart.

70 mq
Piano Terra: luminosa zona giorno con angolo cottura
Piano Primo: camera da letto e bagno
Posto auto esterno
Soluzione 2 – Bilivello con Taverna
Un'abitazione più ampia, pensata per chi cerca spazi extra da vivere con comodità.

100 mq
Piano Terra: zona giorno con angolo cottura e servizio
Piano Primo: due camere e un secondo servizio
Piano Interrato: taverna e lavanderia
Posto auto esterno
Soluzione 3 – Ampio Bilivello con Taverna
La soluzione più completa, ideale per nuclei familiari numerosi o per chi ama vivere la casa in ogni dettaglio.

170 mq
Piano Terra: zona giorno con angolo cottura e servizio
Piano Primo: tre camere e doppi servizi
Piano Interrato: taverna e lavanderia
Posto auto esterno
Punti di Forza del Progetto
Classe energetica A+: massima efficienza, consumi ridotti e comfort elevato.
Personalizzazione: possibilità di scegliere finiture, materiali e distribuzione interna per creare la casa su misura.
Qualità costruttiva: materiali moderni, tecnologie innovative e attenzione al dettaglio.
Posizione strategica: a pochi passi da scuole, negozi, mezzi pubblici e dai principali servizi del paese.
Un'opportunità unica per chi desidera una casa nuova, moderna e personalizzabile in uno dei contesti più ambiti di Pecetto Torinese.
Contattaci per maggiori informazioni o per prenotare una visita al cantiere.

Caratteristiche

Ascensore No
Stato Nuovo / In costruzione
Riscaldamento Autonomo, a pavimento, alimentato a metano

Servizi e accessori

Impianto tv singolo

Posizione

Referente

Case di Collina Immobiliare Pecetto S.r.l.

Storico

Pubblicato 14 Jan 2026
Aggiornato 18 Feb 2026
Sul mercato 37 giorni
ID Annuncio 121854358

Recensioni

Vedi tutte
V

Vittorio Vitale

4.3

Stavo cercando una seconda casa al mare e ho trovato in questa agenzia un team molto professionale e affidabile. Hanno un’ampia scelta di immobili e mi hanno seguito passo passo, aiutandomi a trovare...